Layout für eine Keller-Bar

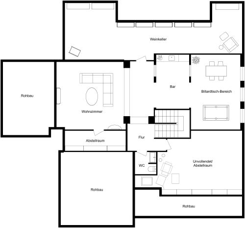
Wer hätte nicht gerne seine eigene Bar zu Hause? Mit diesem Layout für eine Keller-Bar sind Sie immer bereit, Ihre Gäste zu bewirten. Wenn Sie die Treppe hinuntergehen, finden Sie zu Ihrer Linken einen separaten Arbeitsbereich und zu Ihrer Rechten einen großen Wohnbereich. Der Wohnbereich bietet reichlich Platz für ein Sofa, einen Couchtisch und einen Sessel und geht nahtlos in einen modernen Barbereich über. Dieser ist mit einem Esszimmertisch, vier Barhockern, einer rustikalen Bar und hübschen grünen Wänden ausgestattet. An der Bar vorbei führt ein zusätzlicher Wohnbereich, der mit einem weiteren Wohnzimmer-Set und einem Fernseher ausgestattet ist. Im gesamten Raum sind schöne Hartholzböden verlegt. Ein Bad und ein geräumiger Abstellraum vervollständigen diesen einzigartigen Keller. Sie werden sich darauf freuen, Ihre Freunde einzuladen, um ihr Lieblingsgetränk zu genießen, wenn Sie diesen stilvollen und gemütlichen Keller zu Ihrem Haus hinzufügen.

Hergestellt von
Home Designs
822 sq ft
76 m2
1 Etage
1 Toilette

Dieser Grundriss kann angepasst werden.

Dieses Projekt bearbeiten

Möchten Sie diesen Grundriss bearbeiten oder einen eigenen erstellen?

Download App

Ähnliche Grundrisse


Mehr von diesem Anbieter