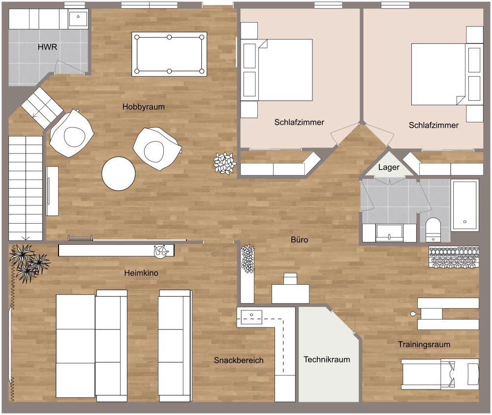
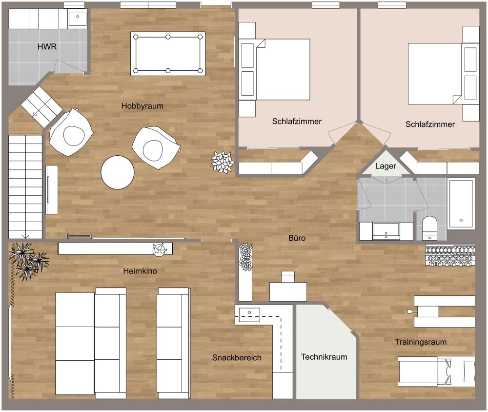
Grundriss für einen Keller

1691 sq ft
157 m²
1 Etage
2 Schlafzimmer
1 Badezimmer

Modern, offen und erfrischend – dieser Grundriss für einen Keller ist der Stoff, aus dem die Träume sind. Gehen Sie die Treppe hinunter, um einen offenen Sitzbereich mit viel Platz für einen Billardtisch zu finden. Dieser Bereich geht nahtlos in ein kleines Büro und einen Fitnessraum über, was dem Raum sowohl Komfort als auch Zweckmäßigkeit verleiht. Zwei nebeneinander liegende Schlafzimmer verfügen über ein Doppelbett, zwei Beistelltische und ein einzelnes Fenster. Das Badezimmer verfügt über einen separaten Waschbeckenbereich und moderne grüne Fliesenböden. Auf der anderen Seite des Souterrains befindet sich eine kleine Abstellkammer mit einem Waschbecken und gewagten, detaillierten Böden. Der Star des Raumes ist das Heimkino mit weißen Sofas, einem Buffet-Tisch und einer übergroßen Leinwand. Ihre Familie und Freunde werden es lieben, Zeit in diesem Keller zu verbringen, der ebenso verspielt wie funktional ist.


Hergestellt von
Home Designs

Ähnliche Grundrisse


Mehr von diesem Anbieter