Kleines Keller-Layout

584 sq ft
54 m²
1 Etage
1 Schlafzimmer
1 Toilette

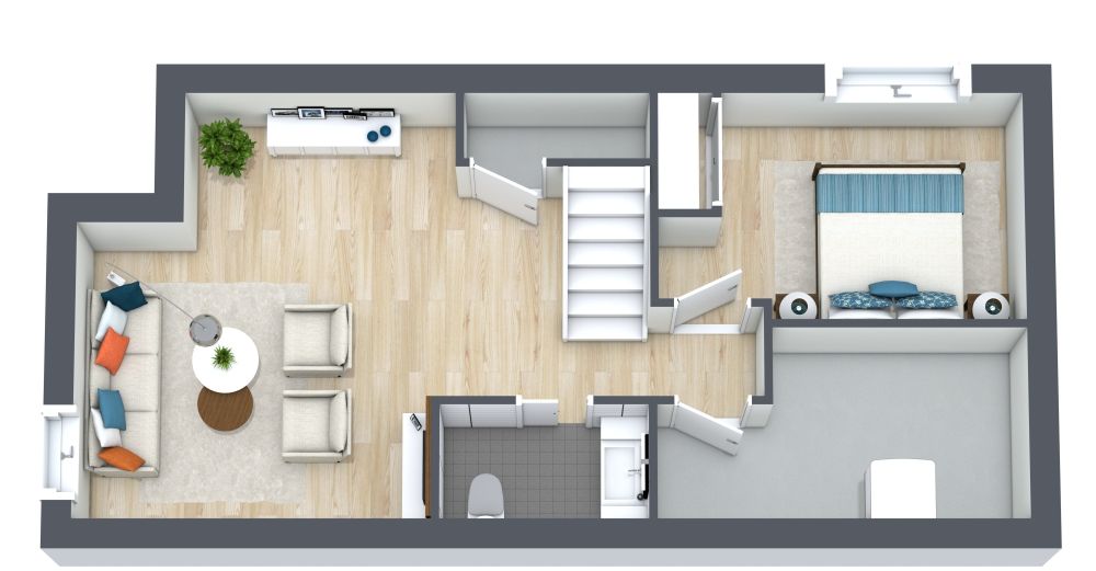
Dieses gemütliche und kleine Keller-Layout ist dennoch lichtdurchflutet, mit hellen Hartholzböden und farbigen Möbeln. Es gibt ein Schlafzimmer mit einem Doppelbett, zwei Beistelltischen und einem Einbauschrank. Außerdem gibt es einen Wohnbereich mit einem Dreisitzer-Sofa und zwei Sesseln um einen Couchtisch herum. In einer Ecke des Wohnbereichs steht ein Fernseher und in einer anderen Ecke ein Beistelltisch mit einer Pflanze daneben. Das Badezimmer hat eine Toilette und ein Waschbecken. Außerdem gibt es einen großen Raum, der je nach Bedarf als Abstellraum genutzt oder in eine Küche umgewandelt werden kann. Insgesamt kann dieses kleine Souterrain als separate Einheit für jemanden dienen, der etwas Privatsphäre möchte, oder es kann als Gästezimmer genutzt werden.


Hergestellt von
Home Designs

Ähnliche Grundrisse


Mehr von diesem Anbieter