Badezimmerplan

295 sq ft
27 m²

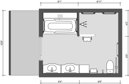
Ein Badezimmer muss nicht zwangsläufig praktisch und langweilig sein. Wenn Sie es mit Sorgfalt gestalten, kann ein Badezimmer Ihnen den nötigen Schwung geben, um in den Tag zu starten. Es kann auch ein großartiger Ort sein, um sich nach der Arbeit zu entspannen und zu erholen. Das Prunkstück dieses Badezimmerplans ist die Badewanne mit einem großen Fenster daneben, das den Blick ins Grüne freigibt. Neben der Badewanne befinden sich zwei Waschbecken, in denen Sie und Ihr Partner sich für die Arbeit oder das Bett fertig machen können. Außerdem gibt es eine Dusche, falls Sie keine Zeit für ein ausgiebiges Bad haben, und einen kleinen Bereich mit einer Toilette und einem Waschbecken. Am Eingang des Badezimmers stehen ein Sessel und einige Kunstwerke an der Wand. Die gelben Fliesen verleihen dem Bad eine fröhliche Ausstrahlung, und die Pflanzen sorgen für Entspannung.


Hergestellt von
Andrea Platzer

Ähnliche Grundrisse


Mehr von diesem Anbieter