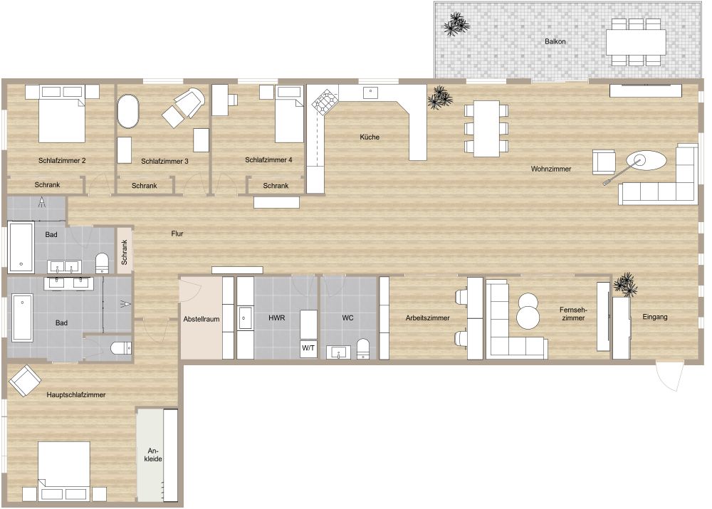
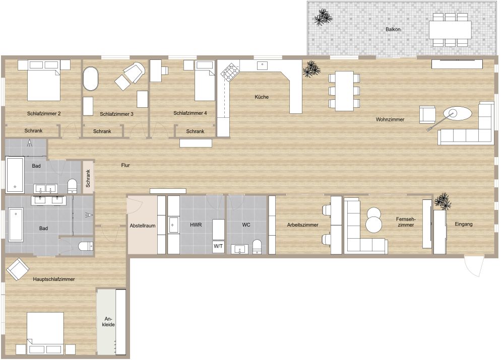
Große 4-Zimmer-Wohnung mit Balkon

Sie haben diese große 4-Zimmer-Wohnung mit Balkon entdeckt, also lassen Sie uns sehen, was Sie bekommen. Ein großer Eingangsbereich empfängt Sie in einem geräumigen Wohnzimmer, das viel Platz für die Familie und gemeinsame Mahlzeiten bietet. Das clevere eckige Design der Arbeitsplatte trennt die Küche auf subtile Weise und sorgt gleichzeitig dafür, dass sie in den Rest des großen Raums integriert bleibt. Ein gemeinsames Badezimmer dient drei Schlafzimmern, die jeweils über ausreichend Stauraum im Schrank verfügen. Damit Sie Ihre Privatsphäre wahren können, ist das Hauptschlafzimmer mit eigenem Bad und begehbarem Kleiderschrank in einem kurzen Flur versteckt. Das durchdachte Design der Wohnung wird durch ein separates Wohn-/Fernsehzimmer gegenüber dem großen Zimmer und einem daneben liegenden Arbeitszimmer mit Schreibtisch für zwei Personen fortgesetzt. Ein praktisches Gäste-WC und ein separater Hauswirtschaftsraum runden die Inneneinrichtung ab. Wenn Sie das große Zimmer verlassen, finden Sie einen großen Balkon – perfekt für die warmen Tage, an denen Sie Ihren Wohnraum erweitern und die Natur genießen möchten.

Hergestellt von
Home Designs
2788 sq ft
259 m2
1 Etage
4 Schlafzimmer
2 Badezimmer
1 Toilette

Dieser Grundriss kann angepasst werden.

Dieses Projekt bearbeiten

Möchten Sie diesen Grundriss bearbeiten oder einen eigenen erstellen?

Download App

Ähnliche Grundrisse


Mehr von diesem Anbieter