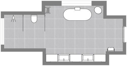
Badezimmerlayout mit grünen Fliesen

237 sq ft
22 m²

Dieses Badezimmerlayout mit grünen Fliesen verwandelt den Raum in eine ruhige Wohlfühloase. Warme Töne und natürliche Akzente schaffen eine entspannte Atmosphäre, die an ein Spa erinnert. Beim Betreten fallen sofort die harmonischen Farben ins Auge: dunkle Holzböden, grüne Mosaikfliesen und lebendige Pflanzen, die dem Raum Frische verleihen. Im Zentrum befindet sich eine große, freistehende Badewanne sowie eine offene Regendusche, die für ein luxuriöses Badeerlebnis sorgen. Zusätzlich bietet das Layout Platz zum Entspannen, mit einem Stuhl und einem kleinen Tisch am Fenster, ideal für Ruhepausen. Ein separates WC mit zusätzlichem Waschbecken erhöht die Privatsphäre und unterstreicht die durchdachte Raumaufteilung. Dieses Badezimmerlayout mit grünen Fliesen verbindet Eleganz, Funktionalität und Natürlichkeit zu einem besonderen Rückzugsort.


Hergestellt von
Andrea Platzer

Ähnliche Grundrisse


Mehr von diesem Anbieter