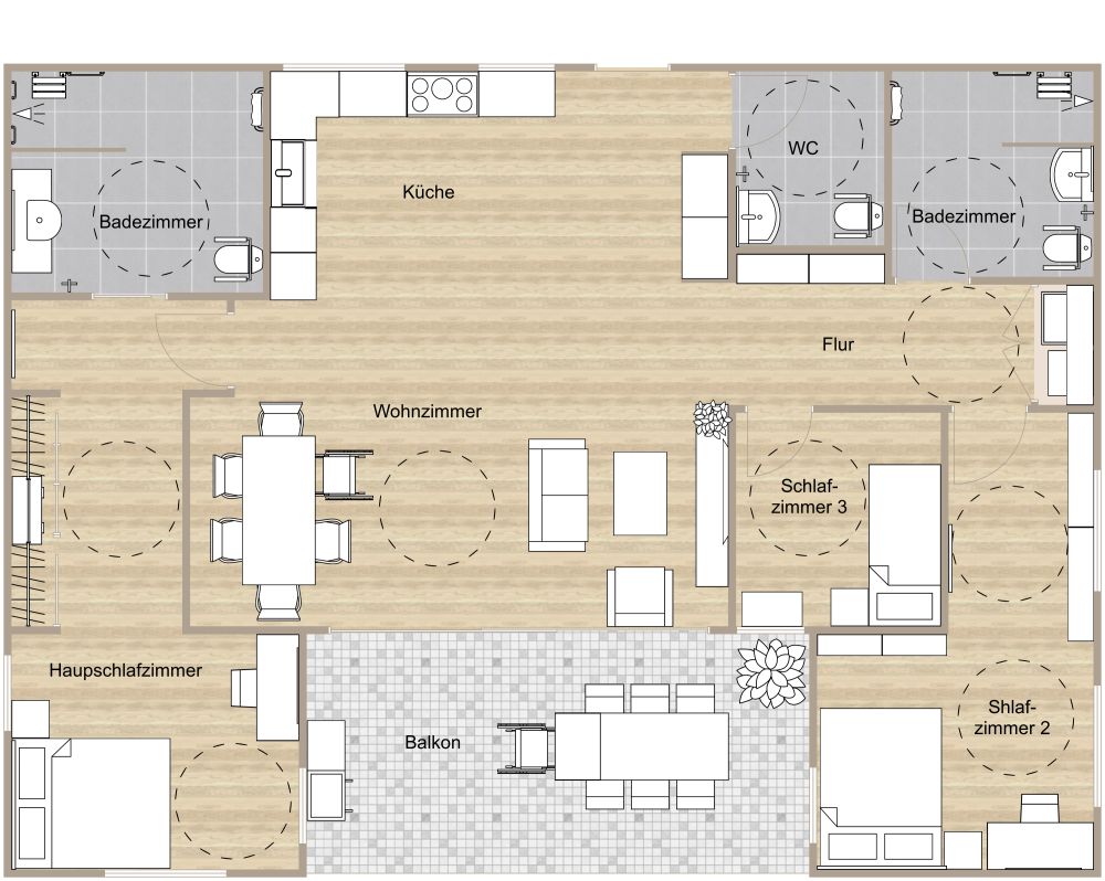
4-Zimmer barrierefreier Grundriss

Der 4-Zimmer barrierefreie Grundriss überzeugt durch eine perfekte Kombination aus Zugänglichkeit, Funktionalität und modernem Wohnkomfort. Das durchdachte Design bietet großzügige Bewegungsflächen und erfüllt alle Anforderungen an ein komfortables, rollstuhlgerechtes Zuhause. Der offene Wohnbereich schafft mit seiner klaren Raumaufteilung eine angenehme und ruhige Atmosphäre. Er gliedert sich in drei Zonen: einen großzügigen Familienbereich, einen separaten Essbereich mit Platz für sechs Personen sowie eine gemütliche TV-Lounge. Die Küche ist zentral gelegen und leicht zugänglich. Auf einer Seite befindet sich das Hauptschlafzimmer mit eigenem Bad. Auf der gegenüberliegenden Seite liegen zwei weitere barrierefreie Schlafzimmer mit direktem Zugang zu einem zweiten Badezimmer. Der große, private Balkon rundet das Wohnkonzept perfekt ab und lädt zum Entspannen im Freien ein. Ein ideales Zuhause für komfortables, sicheres und modernes Wohnen.

Hergestellt von
Home Designs
1365 sq ft
127 m2
1 Etage

Dieser Grundriss kann angepasst werden.

Dieses Projekt bearbeiten

Möchten Sie diesen Grundriss bearbeiten oder einen eigenen erstellen?

Download App

Ähnliche Grundrisse


Mehr von diesem Anbieter