Grundriss für eine Küche mit Frühstücksecke

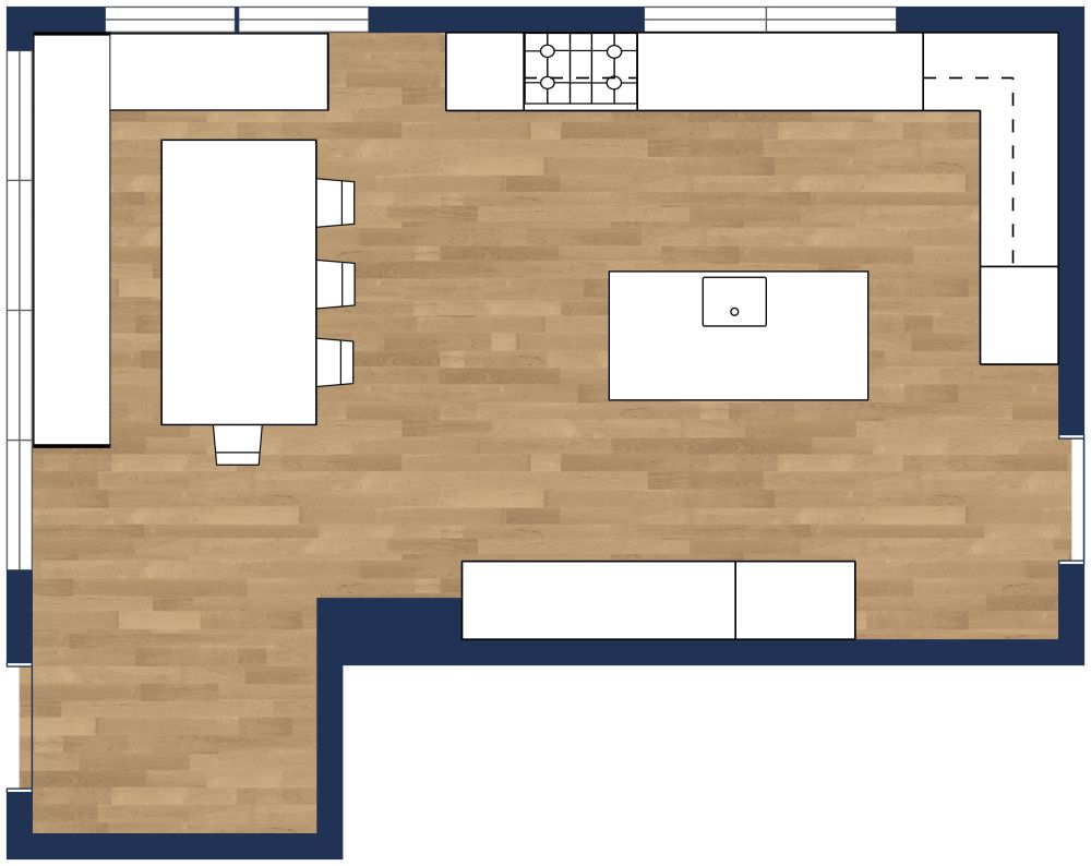
Dieser sonnige und helle Grundriss für eine Küche mit Frühstücksecke bietet viel Platz, um Ihre Lieblingsgerichte zuzubereiten und sich zum Genießen hinzusetzen. In der Ecke der Küche befindet sich eine gemütliche Sitzecke mit eingebauten Bänken, die Platz für bis zu zehn Personen bietet. In der Mitte der Küche befindet sich eine Kochinsel mit glatten Arbeitsflächen für die Zubereitung von Mahlzeiten und einer praktischen Spüle, die von einer modernen Hängeleuchte beleuchtet wird. Die umlaufenden Arbeitsflächen bieten Platz für einen Herd. Zudem können Sie in den Küchenschränken über den Arbeitsflächen Ihr gesamtes Geschirr und Ihre Kochutensilien unterbringen. Auf der gegenüberliegenden Seite befindet sich ein großer Kühlschrank und noch mehr Arbeitsfläche für einen Barbereich oder eine Kaffeestation. Gemeinsam kochen, speisen und unterhalten, während Sie das natürliche Sonnenlicht genießen, das durch die sorgfältig platzierten Fenster einfällt.

Hergestellt von
Kitchen Designs
427 sq ft
40 m2
1 Etage

Dieser Grundriss kann angepasst werden.

Dieses Projekt bearbeiten

Möchten Sie diesen Grundriss bearbeiten oder einen eigenen erstellen?

Download App

Ähnliche Grundrisse


Mehr von diesem Anbieter