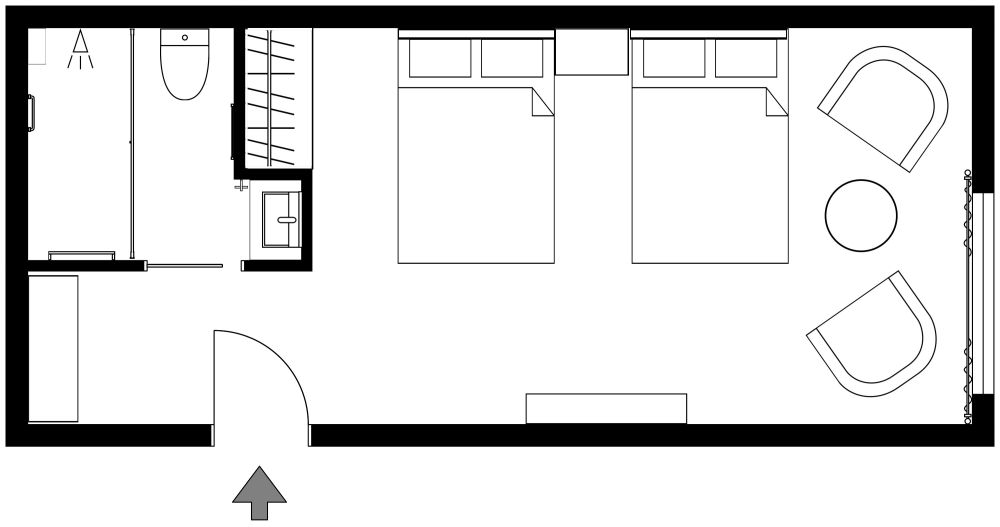
Grundriss für ein geräumiges Hotelzimmer mit Einzelbetten

315 sq ft
29 m²

Dieser Grundriss für ein geräumiges Hotelzimmer mit Einzelbetten bietet alles, was Sie brauchen, um den Platz für zwei Personen zu maximieren. Ein großes Fenster im hinteren Teil des Zimmers lässt den Raum im natürlichen Sonnenlicht erstrahlen. An der Rückwand stehen zwei bequeme Betten mit einem gemeinsamen Nachttisch und Leselampen dazwischen. Links von den Betten befindet sich ein geräumiger Schrank für die Aufbewahrung während Ihres Aufenthalts und rechts eine gemütliche Sitzecke mit zwei Sesseln und einem Tisch in der Mitte, wo Sie sich vor dem Schlafengehen entspannen können. Um die Ecke finden Sie ein Badezimmer mit karierten Fliesen und einer großen Dusche. Zudem steht vor der Badezimmertür ein beleuchteter Waschtisch, mit dem Sie sich stilvoll auf besondere Ereignisse vorbereiten können.


Hergestellt von
Décor Interiors and More

Ähnliche Grundrisse


Mehr von diesem Anbieter