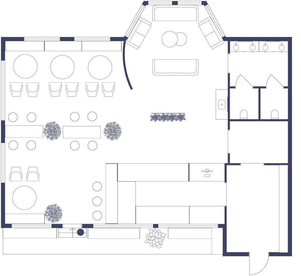
Grundriss für ein verspieltes Cupcake-Café

1782 sq ft
166 m²

Betreten Sie diesen Grundriss für ein verspieltes Cupcake-Café und lassen Sie Ihre Stimmung aufhellen. In der Mitte des Raums befindet sich eine umlaufende Kaffeetheke aus Naturholz mit Platz für Brühgeräte, Backwaren und eine Kasse. Seitlich der Theke befindet sich ein geräumiger Sitzbereich, der sich perfekt für Kaffeekränzchen oder Einzelarbeitsplätze eignet. Große Fenster sorgen für helles Tageslicht, und eine Vielzahl von Tischen und Sitzgelegenheiten bietet für jeden einen Platz, ob auf einer eingebauten, gepolsterten Bank oder an einem langen, rechteckigen Tisch. Hinter der Kasse befindet sich eine gemütliche achteckige Sitzecke mit bequemen Sofas, und an der Seite liegen die Waschräume, die mit hellen Tapeten und Fliesenböden ausgestattet sind.


Hergestellt von
Restaurant Layouts

Ähnliche Grundrisse


Mehr von diesem Anbieter