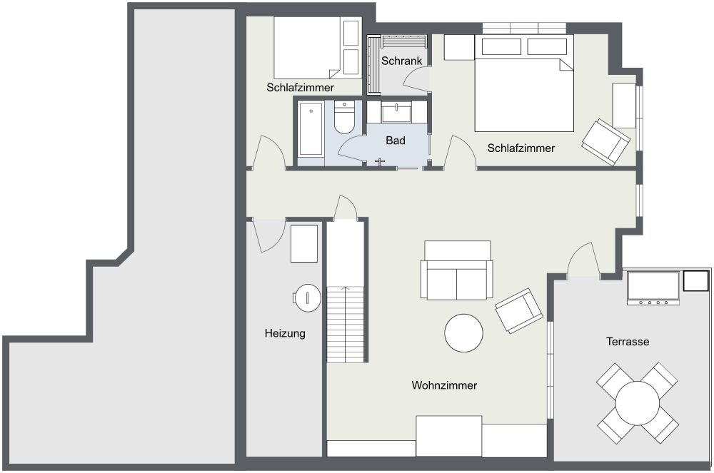
Grundriss für ein 2-stöckiges Haus mit 4 Schlafzimmern und Garage

1943 sq ft
180 m²
2 Etagen
4 Schlafzimmer
3 Badezimmer

Wenn Sie ein schräges Grundstück haben, sollten Sie sich diesen Grundriss für ein 2-stöckiges Haus mit 4 Schlafzimmern und Garage ansehen. Das geschickt gestaltete Eingangsfoyer beherbergt zwei Garderobenschränke, ein Badezimmer und ein flexibel nutzbares Zimmer, ideal als Büro oder Schlafzimmer. Zusätzlich ermöglicht die Doppelgarage einen direkten Hauszugang, neben dem sich ein praktischer Waschraum und eine Waschküche befinden. Im Zentrum des Hauses steht das große, offen gestaltete Wohnzimmer, das durch umlaufende Fenster viel Licht erhält und Zugang zu einer reizvollen Terrasse sowie einem Unterhaltungsbereich bietet. Die moderne Chefküche ist mit einem Herd, einer Spüle, einem Kühlschrank, Oberschränken und einer großen Insel/Frühstücksbar ausgestattet, angrenzend dazu befindet sich eine Essecke, die Platz für sechs Gäste bietet. Das Hauptschlafzimmer im Erdgeschoss verzaubert mit Glasschiebetüren zur Terrasse, einem großzügigen begehbaren Kleiderschrank und einem kompletten Badezimmer mit zwei Waschtischen, einer separaten Toilette, einer begehbaren Dusche und einer freistehenden Badewanne. Im Untergeschoss bietet sich die Möglichkeit, ein zusätzliches Wohnzimmer einzurichten, das als Jugendtreff oder Spielzimmer dienen kann. Ein weiteres geräumiges Schlafzimmer auf dieser Ebene verfügt über einen begehbaren Kleiderschrank und ein eigenes Bad mit Zugang zu einem weiteren Schlafzimmer. Ein großer Hauswirtschaftsraum vervollständigt diesen durchdachten und anpassungsfähigen Grundriss.


Hergestellt von
Kim Anderson Art & Design

Ähnliche Grundrisse


Mehr von diesem Anbieter