Grundriss für eine Garagenwohnung

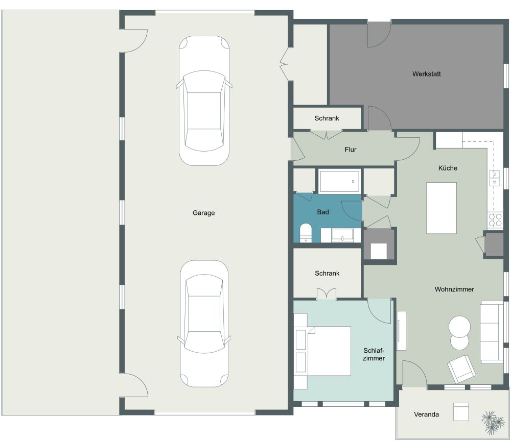
Dieser einstöckige Grundriss für eine Garagenwohnung bietet mit Platz für ein Wohnmobil und einer Doppelgarage die ideale Lösung für Reiseenthusiasten, die einen Teil des Jahres unterwegs sind. Die ausgedehnte Garage, ausgestattet mit zwei komfortablen Garagentoren, gestaltet das Parken jeglicher Fahrzeuge zum Kinderspiel. Der Zugang zur Wohnung ist direkt von der Garage aus oder alternativ über die charmante Veranda und den Haupteingang möglich. Im Wohnzimmer finden Sie genug Platz für ein großzügiges Sofa, einen Sessel, einen Couchtisch und einen Entertainment-Bereich, um entspannte Abende zu genießen. Kochbegeisterte werden die zentral platzierte Inselküche lieben. Die L-förmige Küche bietet alle Notwendigkeiten: einen Kühlschrank, eine Doppelspüle, einen Herd, eine Speisekammer und Hängeschränke, sowie einen äußerst praktischen Wäscheschrank für Waschmaschine und Trockner. Das benachbarte Badezimmer präsentiert sich mit einem geräumigen Waschtisch, einer Toilette, einem weiteren Wäscheschrank und einer kombinierten Badewanne/Dusche. Im großzügigen Schlafzimmer findet ein Doppelbett, Beistelltische und eine kleine Kommode oder Regale Platz; ein weitläufiger, begehbarer Kleiderschrank bietet reichlich zusätzlichen Stauraum. Zudem überzeugt dieser durchdachte Grundriss mit einer zusätzlichen Werkstatt oder einem Bastelraum sowie diversen weiteren Stauschränken.

Hergestellt von
Apartment Designs
811 sq ft
75 m2
1 Etage
1 Schlafzimmer
1 Badezimmer

Dieser Grundriss kann angepasst werden.

Dieses Projekt bearbeiten

Möchten Sie diesen Grundriss bearbeiten oder einen eigenen erstellen?

Download App

Ähnliche Grundrisse


Mehr von diesem Anbieter