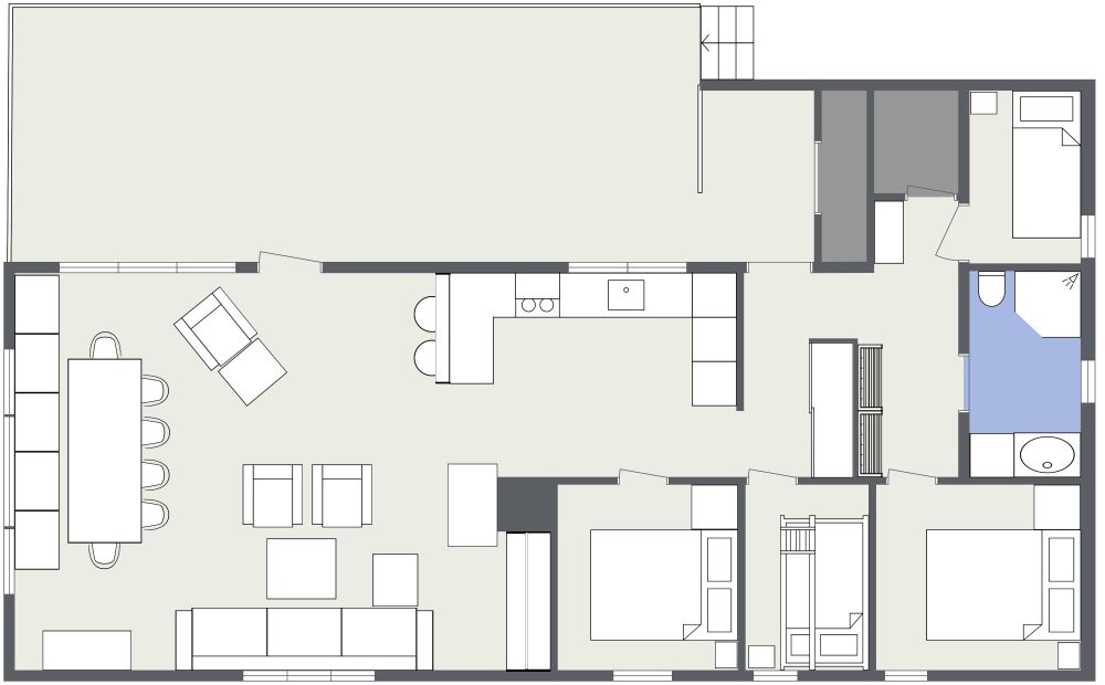
Grundriss für eine Hütte mit 4 Schlafzimmern

In diesem Grundriss für eine Hütte mit vier Schlafzimmern erwartet Sie Komfort sowohl im Innen- als auch im Außenbereich. Die großzügige vordere Veranda lädt dazu ein, die Umgebung zu bestaunen und heißt Sie herzlich willkommen, wenn Sie sich dem Haus nähern. Hinter einem stilvollen Paravent finden Sie einen nützlichen Abstellbereich für Sportausrüstung oder Gartengeräte. Im Inneren empfängt Sie ein weitläufiger Wohn- und Essbereich, in dessen Mitte ein einladender Kamin für Wohlfühlatmosphäre sorgt. Die clever gestaltete U-Küche bietet trotz ihrer Kompaktheit alles, was man benötigt: eine Frühstücksbar, Kochfeld, Spüle, Weinaufbewahrung, Kühlschrank und Wandofen. Ein angrenzender großer Lagerraum kann auch als Vorratskammer dienen und bietet zusätzlichen Stauraum für Wäsche, Decken oder Spiele. Zwei der Schlafzimmer sind geräumig und für Doppelbetten konzipiert, während die beiden kleineren Zimmer sich ideal für Kinder eignen – eventuell mit Etagenbetten. Ein umfangreich ausgestattetes Badezimmer mit Dusche, WC, Waschbecken sowie Waschmaschine und Trockner runden diesen Grundriss ab.

Hergestellt von
Marit Skei | Interiørhjelp
906 sq ft
84 m2
1 Etage
4 Schlafzimmer
1 Badezimmer

Dieser Grundriss kann angepasst werden.

Dieses Projekt bearbeiten

Möchten Sie diesen Grundriss bearbeiten oder einen eigenen erstellen?

Download App

Ähnliche Grundrisse


Mehr von diesem Anbieter