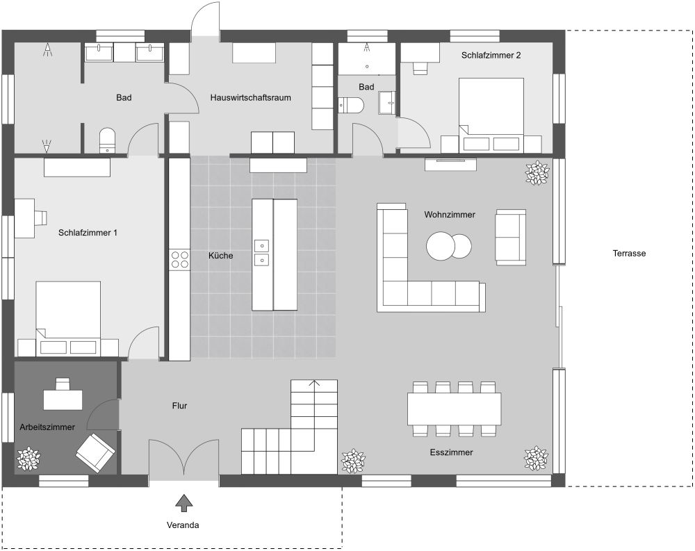
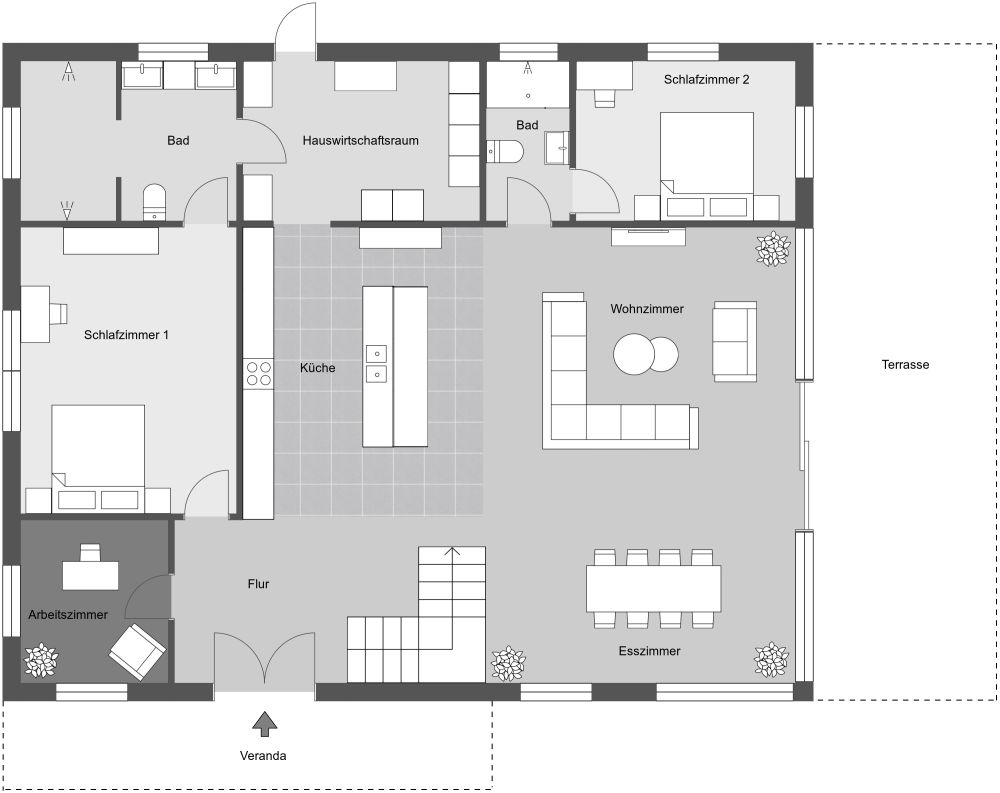
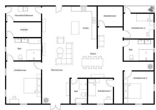
2-stöckiger Grundriss mit 4 Schlafzimmern und Hauswirtschaftsraum

2420 sq ft
225 m²
2 Etagen
4 Schlafzimmer
3 Badezimmer

Wenn Sie helle, offene und geräumige Wohnräume lieben, werden Sie dieses 2-stöckiger Grundriss mit 4 Schlafzimmern und Hauswirtschaftsraum lieben. Der durchdachte Grundriss umfasst zwei Eingangsmöglichkeiten: eine über die große Terrasse und eine andere über eine charmante, kleinere Veranda. Im Herzen des Hauses liegt das Wohnzimmer, ausgestattet mit einer bequemen Couchgarnitur, einem Sofa, einem Teppich und einer stilvollen holzgetäfelten Wand. Dieser Bereich fließt nahtlos in den Essbereich und die Küche über. Die Küche präsentiert sich mit weißen Schränken und dunkelgrünen Arbeitsplatten, die eine elegante und zugleich mutige Ästhetik erzeugen. Heller Parkettboden erstreckt sich durch das gesamte Wohnzimmer sowie die beiden großzügigen Schlafzimmer und das Büro. Das Hauptbad, das Gästebad und die Waschküche sind mit schiefergrauen Fliesen und modernen weißen Geräten ausgestattet, was eine zeitgemäße Note verleiht. Natürliches Licht durchflutet jeden Raum des Hauses, was zu einer frischen und lebendigen Atmosphäre beiträgt. Dieses Design vereint modernen Stil mit entspanntem Komfort und ist damit ideal für das zeitgenössische Wohnen.


Hergestellt von
Home Designs

Ähnliche Grundrisse


Mehr von diesem Anbieter