Modernes Design für ein Büro für kleine Räume

160 sq ft
15 m²

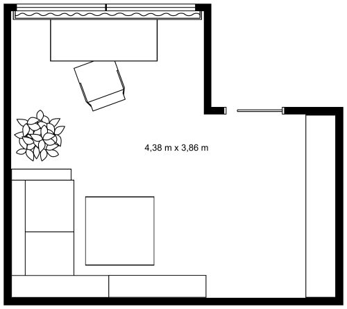
Es gibt verschiedene Blau- und Grautöne, warme Holzelemente und Farbakzente in diesem modernen Design für ein Büro für kleine Räume, die Sie in diesem Layout sehen. Es gibt einen ziemlich großen Holzschreibtisch, der gut in eine Nische in der Wand passt. Unter dem Schreibtisch befinden sich Schubladen und ein bequemer Stuhl. In einer Ecke dieses Grundrisses stehen ein Sofa und ein Sessel, dazwischen ein Couchtisch und ein cremefarbener Teppich auf dem Boden. Das Fenster an der Wand neben dieser Sitzgruppe sorgt für viel Licht, und eine Ecklampe trägt ebenfalls zu einer gemütlichen Atmosphäre bei. In einer Ecke steht ein kleiner Tisch mit einer Pflanze und an einer Wand steht ein Bücherregal. Alles in allem ist dies ein großartiger Raum, um zu arbeiten, Kunden zu treffen oder zu entspannen.


Hergestellt von
Office Layouts

Ähnliche Grundrisse


Mehr von diesem Anbieter