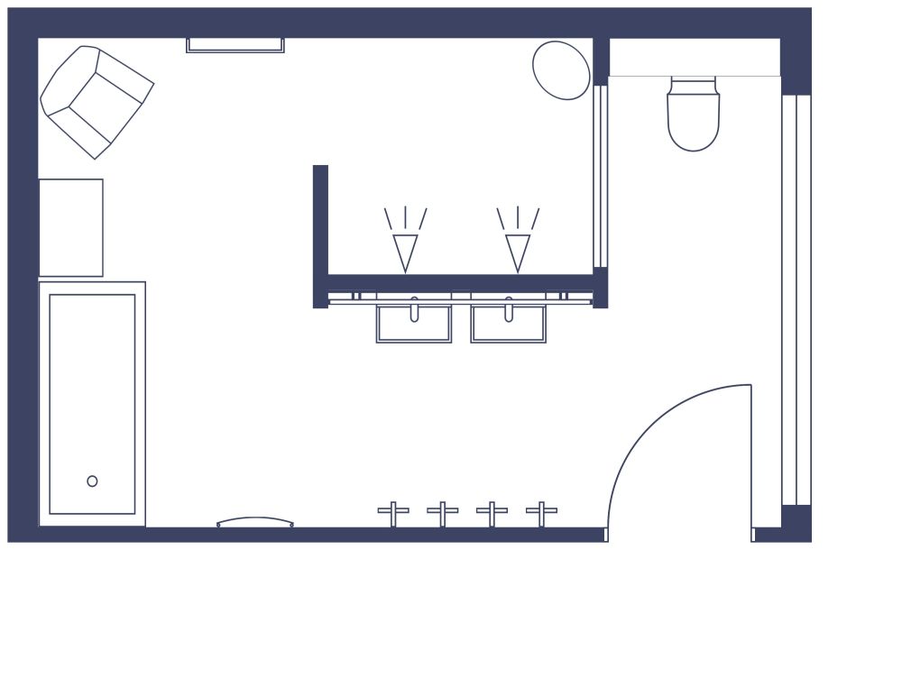
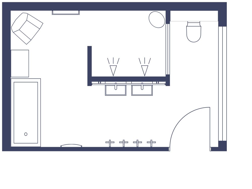
Eklektisches Design für ein Hauptbadezimmer

164 sq ft
15 m²

Lassen Sie sich von diesem lustigen und eklektischen Design für ein Hauptbadezimmer inspirieren. Der Grundriss führt durch eine Schwingtür in ein großes Badezimmer mit zwei Waschbecken, einer Wandtoilette, einer freistehenden Badewanne und einer separaten Dusche. Ein praktischer Beistelltisch neben der Badewanne hält Handtücher und Accessoires griffbereit, und ein bequemer Sessel bietet einen Platz zum Entspannen. Um eine fröhliche, verspielte Atmosphäre zu schaffen, wurden großformatige schwarze Bodenfliesen, mittelgroße quadratische blaue Wandfliesen, weiße Badezimmermöbel und gelbe Farbtupfer in der gesamten Einrichtung verwendet. Zur Ausstattung gehören ein großer beleuchteter Kosmetikspiegel, ein heizender Handtuchhalter und zwei Duschköpfe im geräumigen Duschbereich. Ein Traumbad für zwei Personen.


Hergestellt von
Bathroom Designs

Ähnliche Grundrisse


Mehr von diesem Anbieter