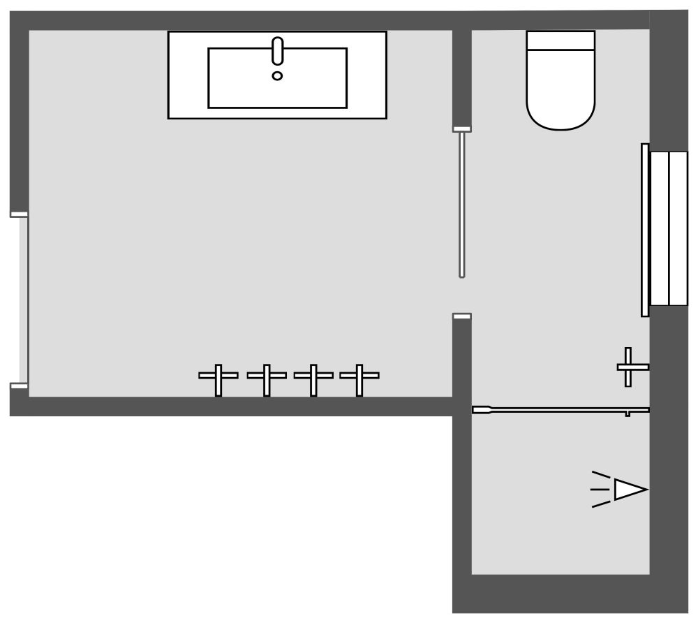
Grundriss für ein L-förmiges Badezimmer

Dieser wunderschöne Grundriss für ein L-förmiges Badezimmer ist im modernen Stil der Jahrhundertmitte gestaltet. Zu Beginn öffnet sich eine Schwingtür in einem Dual-Raum. Der Eingangsraum enthält ein Waschbecken und eine Schiebetür, die zu einer gemeinsamen Toilette und einer geschlossenen Dusche führt. Der moderne Stil der Jahrhundertmitte ist eine eklektische Mischung aus Zweckmäßigkeit, Erdverbundenheit, Retro-Farben und Formen aus den 1960er und 70er Jahren sowie skandinavischer Schlichtheit. In diesem Badezimmer kombiniert der Waschtisch eine moderne Form mit Holzmaterialien aus der Mitte des Jahrhunderts. Die quadratischen Bodenfliesen, die rechteckigen Akzentwände und der große Spiegel bringen die geometrischen Muster ein, die für die Einrichtung dieses Stils typisch sind. Eine witzige, zeitgemäße Beleuchtung ist ein Muss, wie zum Beispiel die abgebildeten runden Pendelleuchten. Der letzte Schliff ist die Retro-Farbpalette aus Mandarinenorange und Teal, kombiniert mit den erdigen Holztüren und Fensterläden.

Hergestellt von
Bathroom Designs
72 sq ft
7 m2
1 Etage

Dieser Grundriss kann angepasst werden.

Dieses Projekt bearbeiten

Möchten Sie diesen Grundriss bearbeiten oder einen eigenen erstellen?

Download App

Ähnliche Grundrisse


Mehr von diesem Anbieter