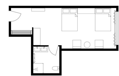
Grundriss für ein Hotelzimmer

Die besten Hotelzimmer sind die, in denen man sich sofort wie zu Hause fühlt. Dieser Grundriss für ein Hotelzimmer tut genau das. Wenn Sie den Raum durch einen einladenden Eingangsbereich betreten, liegt das separate Badezimmer durch eine Schiebetür zu Ihrer Rechten. Das Badezimmer ist schick und modern mit schwarzem Fliesenboden und einer passenden Toilette und einem Waschbecken. Hinter dem Eingang befindet sich das gemütliche Schlafzimmer mit einer anthrazitfarben gestreiften Akzentwand und zweifarbigen Holzböden. Eine Vielzahl von Holzmöbeln, darunter ein Kopfteil aus Walnussholz und verschiedene Beistelltische, tragen zu dem eklektischen und doch gemütlichen Ambiente bei. Die beiden großzügigen Fenster sind mit burgunderroten Vorhängen geschmückt, während das Bett in Königsblau, Weiß und Sackleinen bezogen ist. Die Kombination aus rustikalen, traditionellen und modernen Elementen lässt Sie vergessen, dass Sie sich nicht in Ihrem eigenen Haus befinden, sondern in einem Hotelzimmer.

Hergestellt von
Franziska Voigt
259 sq ft
24 m2
1 Etage

Dieser Grundriss kann angepasst werden.

Dieses Projekt bearbeiten

Möchten Sie diesen Grundriss bearbeiten oder einen eigenen erstellen?

Download App

Ähnliche Grundrisse


Mehr von diesem Anbieter