Grundriss für ein Hotelzimmer mit neutralen Farben

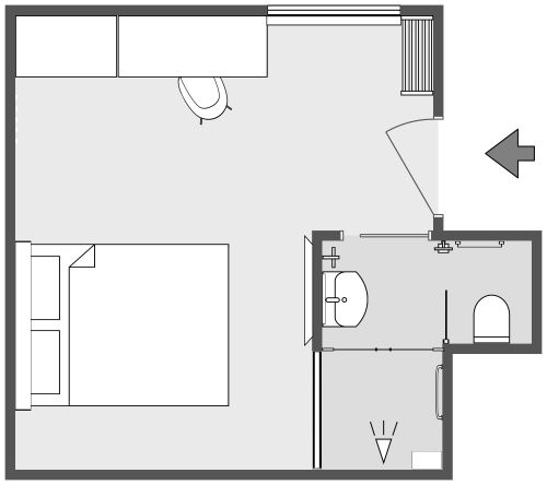
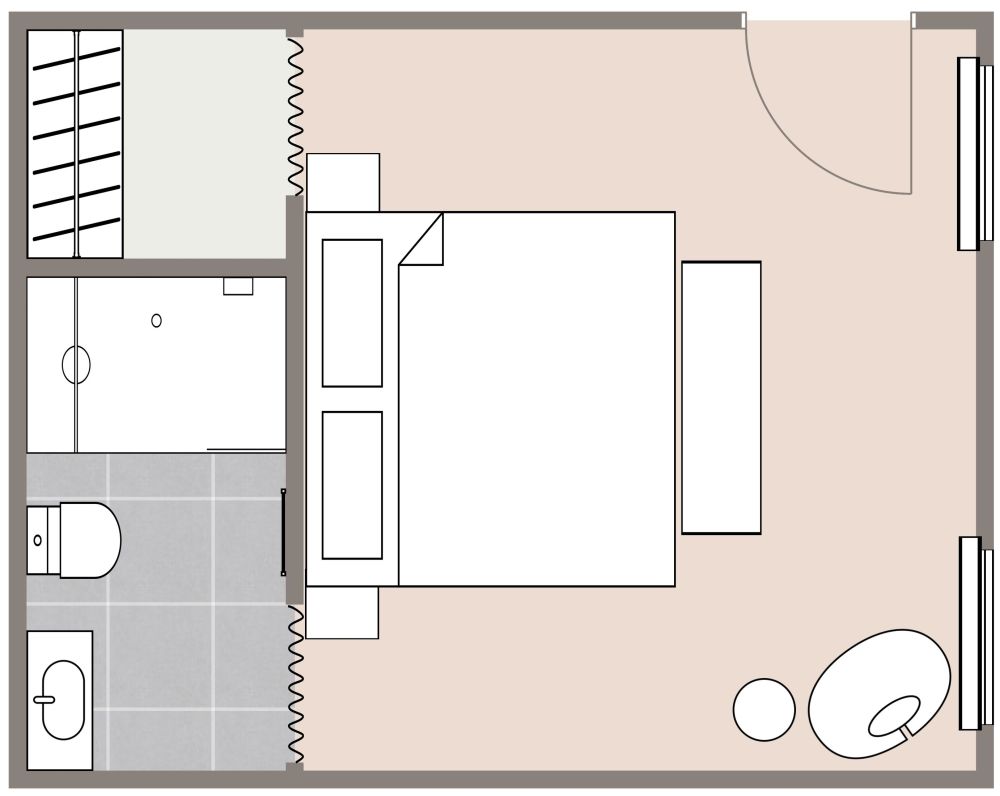
Die Creme- und Beigetöne in diesem Grundriss für ein Hotelzimmer in neutralen Farben vermitteln eine ruhige und gelassene Atmosphäre. In der Mitte des Zimmers befindet sich ein Doppelbett mit zwei Beistelltischen und Lampen. Am Fuß des Tisches befindet sich außerdem eine Schlafbank, die als Ablage oder Sitzgelegenheit genutzt werden kann. In einer Ecke des Zimmers, neben dem Fenster, steht ein bequemer grüner Stuhl, auf dem die Gäste sitzen, lesen oder einen Snack genießen können. Zwei weiche Teppiche auf beiden Seiten des Bettes sorgen dafür, dass die Gäste mitten in der Nacht nicht auf einen kalten Boden treten. Außerdem gibt es einen kleinen begehbaren Kleiderschrank mit einer Kleiderstange und Haken sowie ein Badezimmer mit Dusche, Waschbecken und Toilette. Insgesamt handelt es sich um ein gemütliches, funktionales Hotelzimmer mit einer warmen Ausstrahlung.

Hergestellt von
Décor Interiors and More
239 sq ft
22 m2
1 Etage

Dieser Grundriss kann angepasst werden.

Dieses Projekt bearbeiten

Möchten Sie diesen Grundriss bearbeiten oder einen eigenen erstellen?

Download App

Ähnliche Grundrisse


Mehr von diesem Anbieter