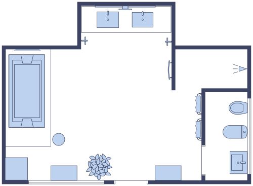
Großes Badezimmer mit dunklen Wänden

130 sq ft
12 m²

Dieses große Badezimmer mit dunklen Wänden und Schränken hat eine maskuline, industrielle Ausstrahlung. Die schwenkbare Eingangstür öffnet sich zu einem großzügigen, offenen Raum. Ein atemberaubender Wandspiegel hinter der freistehenden Badewanne ist ein Blickfang im Raum. Doppelwaschbecken sind ein willkommenes Merkmal für ein Paar, das sich den Raum teilt, ebenso wie die Handtuchhalter, die bequem neben jedem Waschbecken angebracht sind. An der Wand befestigte Spiegelschränke und Schubladen unter dem Waschbecken bieten reichlich Stauraum. Der Raum ist mit interessanten Mustern, Farben und Texturen gestaltet, die für visuelles Interesse sorgen ‒ darunter zwei Wände aus Schiffslatten, zwei dunkle Wände und großformatige Fliesen, die alle Farben miteinander verbinden. Eine Decke, eine Tür und ein Fenster aus hellem Holz verleihen diesem wunderschönen Raum eine warme, sauna-ähnliche Atmosphäre.


Hergestellt von
Andrea Platzer

Ähnliche Grundrisse


Mehr von diesem Anbieter