Einfacher Hausplan mit Garage

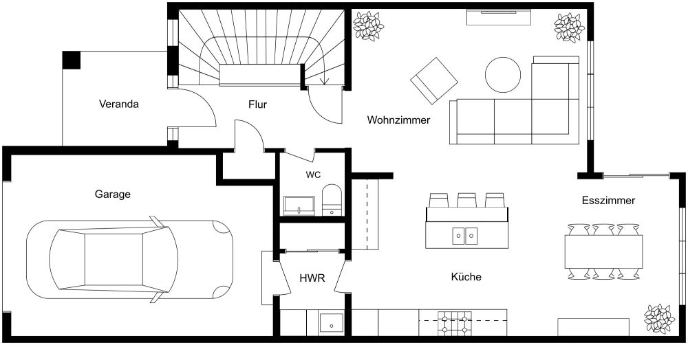
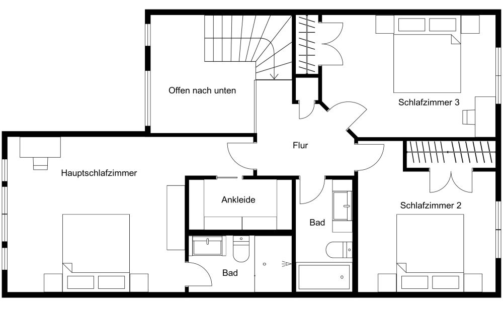
In diesem einfachen Hausplan mit Garage finden Sie alles, was Sie brauchen. Betreten Sie das Haus über die vordere Veranda oder den bequemen Garagenzugang in den Hauswirtschaftsraum und Abstellraum. Sie werden den Garderobenschrank und das Badezimmer im vorderen Foyer zu schätzen wissen. Der offen gestaltete große Raum umfasst einen Wohnbereich mit großen Fenstern, um die Aussicht zu genießen, und einen Essbereich mit einer Glasschiebetür, die in den Garten führt. Die L-förmige Küche bietet mit ihrer bequemen Kochinsel/Frühstücksbar, dem Herd, der Spüle, dem Doppelkühlschrank und einer langen Arbeitsfläche viel Platz zum Kochen und für Gäste. Im Obergeschoss befindet sich das große Hauptschlafzimmer mit einem geräumigen begehbaren Kleiderschrank und einem angeschlossenen Bad mit Waschbecken, Toilette und einer übergroßen Dusche. Zwei weitere Schlafzimmer mit Einbauschränken teilen sich das zweite Badezimmer mit Waschbecken, Toilette und Wannen-Dusch-Kombination.

Hergestellt von
Home Designs
1636 sq ft
152 m2
2 Etagen
3 Schlafzimmer
2 Badezimmer
1 Toilette

Dieser Grundriss kann angepasst werden.

Dieses Projekt bearbeiten

Möchten Sie diesen Grundriss bearbeiten oder einen eigenen erstellen?

Download App

Ähnliche Grundrisse


Mehr von diesem Anbieter