Smultronstället 94 Grundrisse

1085 sq ft
101 m²
1 Etage
2 Schlafzimmer
1 Badezimmer
1 Toilette

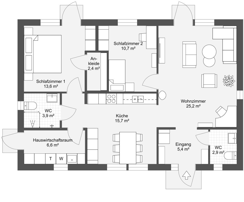
Der Smultronstället 94 Grundrisse besticht durch seine durchdachte Raumaufteilung, die jeden Quadratmeter optimal ausnutzt. Sobald Sie durch die Haupteingangstür treten, empfängt Sie ein einladendes Foyer, ausgestattet mit Regalen und Schränken – ideal für Handtaschen, Schuhe oder Rucksäcke. Rechter Hand befindet sich ein kompaktes, aber funktionales Bad mit Waschbecken und Toilette. Das großzügig geschnittene Wohnzimmer lässt genug Platz für eine gemütliche Sofalandschaft und bietet darüber hinaus Raum für beispielsweise einen Schreibtisch, ein Klavier oder andere Lieblingsstücke. Eine Tür vom Wohnzimmer aus gewährt Zutritt zu einer optionalen Terrasse oder einem idyllischen Innenhof. Die Küche begeistert mit einem vollwertigen Kühlschrank, einer praktischen Speisekammer, einem Herd, einem Doppel-Backofen, einer Spüle und weiterem Stauraum in den Hängenschränken. Eine geräumige Waschküche mit zusätzlichem Stauraum, Waschbecken, Waschmaschine und Trockner verfügt auch über eine Tür, die den direkten Zugang nach draußen ermöglicht – perfekt, um Wäsche im Freien zu trocknen. Das Hauptschlafzimmer punktet mit einem großzügigen begehbaren Kleiderschrank und Platz für eine zusätzliche Garderobe oder Kommode. Eine weitere Tür führt direkt zu einem Außenbalkon oder einer Terrasse. Das etwas kompaktere zweite Schlafzimmer ist vielseitig einsetzbar, sei es mit Etagenbetten für die Kleinen, einem gemütlichen Bett für Gäste oder als Büro- bzw. Bastelraum.


Hergestellt von
Bra Hus

Ähnliche Grundrisse


Mehr von diesem Anbieter