Möbel-Layout für das Schlafzimmer

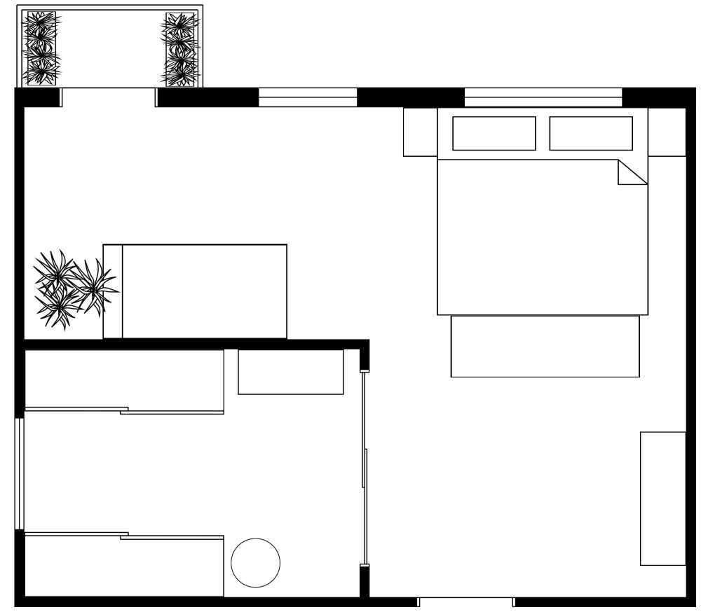
Dieses möblierte Schlafzimmer mit warmen Parkettboden und viel natürlichem Licht nutzt den vorhandenen Platz sinnvoll aus, um einen begehbaren Kleiderschrank und einen kleinen Balkon einzubauen; außerdem bietet es Platz für eine Chaiselongue, ein Sideboard und ein Doppelbett. Der begehbare Kleiderschrank bietet Platz für zwei Schränke und eine Kommode und verfügt über ein feststehendes Fenster, durch das Tageslicht einfällt. Unter einem großen Fenster können Sie ein Doppelbett und zwei Nachttische aufstellen, in einer Ecke ein Sideboard und einen Spiegel. Am anderen Ende können Sie eine Lese- oder Lounge-Ecke mit einer Chaiselongue einrichten. Und wenn Sie eine Pause von Ihrem Buch brauchen oder einfach nur etwas Luft schnappen wollen, können Sie durch eine Glastür auf einen kleinen Balkon gehen. Dieses Schlafzimmer ist geometrisch ansprechend, geräumig und praktisch.

Hergestellt von
Bedroom Designs
351 sq ft
33 m2
1 Etage

Dieser Grundriss kann angepasst werden.

Dieses Projekt bearbeiten

Möchten Sie diesen Grundriss bearbeiten oder einen eigenen erstellen?

Download App

Ähnliche Grundrisse


Mehr von diesem Anbieter