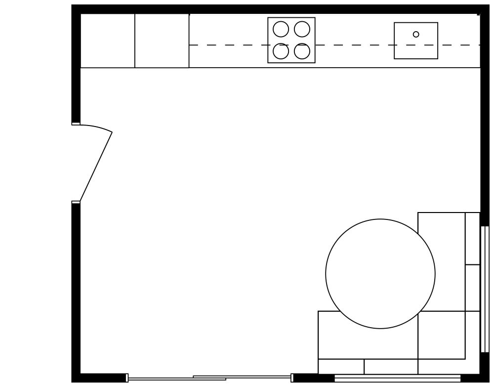
Küchenzeile im klassischen Stil

Das minimalistische Wohndesign hat etwas, das jeden Raum frisch und einladend wirken lässt. Diese Küchenzeile im klassischen Stil beweist, dass Ihre Wohnräume nicht außergewöhnlich sein müssen, um Wirkung zu zeigen. Jeder, der Ihr Haus betritt, wird die weiß auf weiß gehaltene Kombination aus Arbeitsplatte und Schränken zu schätzen wissen, die Ihre Küche modern sowie einladend erscheinen lässt. Helle Hartholzböden sind die perfekte Ergänzung zu der sauberen und doch gemütlichen Ästhetik dieses Raumes und bieten den idealen Hintergrund für zahlreiche Einrichtungsstile. Da die gesamte Küche nur eine Wand des Raumes einnimmt, wird sie zu einem überraschenden, aber charmanten Mittelpunkt des Raumes. Außerdem gibt es reichlich Platz für eine kleine, rollende Kochinsel sowie für eine Essgruppe oder eine andere Sitzgelegenheit unter den hellen Eckfenstern der Küche. Wenn Sie eine klassische, klare Raumgestaltung bevorzugen, ist diese Küche wie für Sie gemacht.

Hergestellt von
Kitchen Designs
189 sq ft
18 m2
1 Etage

Dieser Grundriss kann angepasst werden.

Dieses Projekt bearbeiten

Möchten Sie diesen Grundriss bearbeiten oder einen eigenen erstellen?

Download App

Ähnliche Grundrisse


Mehr von diesem Anbieter