Warum viele Bauherren einstöckige Häuser wählen
Einstöckige Häuser bieten klare Wege, komfortables Wohnen ohne Treppen und vielseitige Gestaltungsmöglichkeiten. In diesem Artikel zeigen wir, welche Grundrisse für einstöckige Häuser besonders gut funktionieren – von offenen Wohnbereichen bis zu barrierearmen Lösungen.

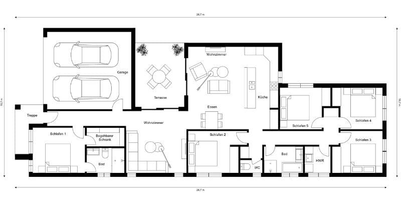
Ein eingeschossiger Hausgrundriss bedeutet, dass alle Räume auf einer einzigen Ebene, im Erdgeschoss, untergebracht sind.
Diese Art von Grundriss ist ideal für alle, die eine Treppe vermeiden wollen. Aber das ist nicht der einzige Grund, warum Grundrisse für einstöckige Häuser sehr beliebt sind.
Die gegenwärtigen Grundrisse haben oft eine offene Raumaufteilung, die viele Vorteile bietet.
Einstöckige Häuser sind nicht nur leichter zu reinigen und zu pflegen, sondern auch platzsparender, leiser und bequemer als mehrstöckige Häuser.
Trotz der ebenerdigen Wohnfläche bieten sie viele Gestaltungsmöglichkeiten.
Vorteile eines eingeschossigen Haus-Grundrisses

1. Sicherheit
Einer der offensichtlichsten Vorteile eines einstöckigen Hausgrundrisses ist die Sicherheit.
Da es nur wenige oder gar keine Treppen gibt, ist ein einstöckiges Haus für alle viel sicherer. Sie müssen sich nicht um die Kinder sorgen, die die Treppe hinunter fallen könnten oder dass sie gar selbst ins Stolpern geraten. Wenn Sie also vorhaben, langfristig in Ihrem Haus zu bleiben, ist ein einstöckiges Haus mit nur wenigen Treppen eine gute Idee.
Und sollten Sie im Notfall Ihre Wohnung schnellstmöglich verlassen müssen, ist auch dies viel einfacher, da sich alle Zimmer auf einer Ebene mit den Ausgängen befinden.
2. Reinigung und Instandhaltung
Haben Sie schon einmal einen schweren Staubsauger eine Treppe hinaufgeschleppt? Oder eine volle Ladung Wäsche die Treppe hinunter- und wieder hinaufgetragen?
Wenn ja, dann wissen Sie, dass ein ebenerdiger Grundriss Ihnen die alltägliche Hausarbeit deutlich erleichtern wird.
Auch Wartungsarbeiten im Außenbereich, wie beispielsweise das Auswechseln von Fliegengittern, das Reinigen von Außenfenstern, Malerarbeiten oder das Säubern der Dachrinne, sind in einem einstöckigen Haus viel einfacher und leichter zu erledigen.
3. Platzsparend
Grundrisse für einstöckige Häuser sind oft unglaublich platzsparend.
Sie müssen zum Beispiel keinen wertvollen Platz für eine Treppe einplanen.
Möglicherweise können Sie weniger Bäder einrichten, da Sie nicht auf jeder Etage mehrere Bäder einrichten müssen. Stattdessen kann ein Bad für mehrere Schlafzimmer genutzt werden und auch für Besucher zur Verfügung stehen.
Auch andere Bereiche können gemeinsam genutzt werden: Anstelle eines Abstellraums oder einer Abstellkammer im Erdgeschoss und einer Waschküche im Obergeschoss können Sie die beiden Bereiche in einem eingeschossigen Grundriss kombinieren.

4. Vorteile beim Heizen und Kühlen
Ein einstöckiges Haus ist in der Regel einfacher und billiger zu heizen. Da Wärme nach oben steigt, kann die Wärme im Obergeschoss verschwinden, so dass Sie die Heizung länger laufen lassen müssen, um das Untergeschoss warm zu halten.
Im Sommer kann ein einstöckiges Haus auch kühler bleiben. Die aufsteigende Hitze kann das oberste Stockwerk eines mehrstöckigen Hauses überhitzen, so dass Sie die Klimaanlage einschalten müssen.
Außerdem können Sie bei einem einstöckigen Haus ein einziges Klimagerät verwenden, anstatt eines für jedes Stockwerk, was Ihnen Kosten und Wartungsaufwand erspart.
5. Leiser
In einem eingeschossigen Haus hören Sie niemanden, der über Ihnen geht.
Abhängig von dem ausgewählten Grundriss, kann das Hauptschlafzimmer oder alternativ eine Einliegerwohung auf der einen Seite des Hauses untergebracht werden und die übrigen Schlafzimmer auf der anderen Seite. Dieses Raumaufteilungskonzept sorgt für mehr Ruhe.

6. Bequemlichkeit
Seien wir ehrlich, ohne Treppe ist es sicherlich zeitsparender, einen vergessenen Gegenstand aus dem Schlafzimmer zu holen, wenn man auf dem Weg zur Arbeit bereits fast schon zur Tür hinaus war. Wenn Sie das Haus mit einem Baby im Kinderwagen, mit Gepäck oder mit einem Einkaufswagen auf Rädern betreten, ist es deutlich leichter sich im Haus zu bewegen, wenn Sie keine Treppe überwinden müssen.
7. Barrierefreiheit

Wenn Sie auf einen Rollstuhl oder eine Gehhilfe angewiesen sind, ist es viel einfacher, sich in einem einstöckigen Haus zu bewegen.
8. Mehr Deckenhöhe und Gestaltungsmöglichkeiten
Ein einziges Stockwerk eröffnet viele Möglichkeiten für interessante Deckenhöhen und Ausstattungen. Hohe Kathedralen sind sehr beliebt, und Sie können diese in den Hauptwohnbereichen oder in einem großen Schlafzimmer einbauen. Für schönes natürliches Licht können Sie in einem einstöckigen Haus praktisch überall Oberlichter anbringen.
9. Schneller zu bauen
Der Bau eines einstöckigen Hauses geht in der Regel schneller, da der Bauherr keine Treppe und dementsprechend kein zusätzliches Stockwerk darüber bauen muss.
Kompakt bis luxuriös

Einstöckige Häuser müssen nicht zwangsläufig klein sein. Sie werden Pläne finden, die von kompakt bis groß und luxuriös reichen.
Wenn Sie sich größere einstöckige Häuser ansehen, sollten Sie nach Plänen Ausschau halten, bei denen die einzelnen Bereiche des Hauses durchdacht sind.
So gibt es zum Beispiel einen Bereich für die Schlafzimmer, einen Bereich für Gäste und eine Küche mit Essbereich. Dies ist wichtig, um eine rundum einladende Wohnlandschaft zu schaffen, die darüber hinaus auch sinnvoll genutzt werden kann. So müssen Sie nicht das halbe Haus durchqueren, um von der Küche in den Essbereich zu gelangen.

Erstellen Sie Grundrisse im Handumdrehen
Mit RoomSketcher können Sie Grundrisse für jedes Projekt zeichnen, anpassen und visualisieren:
- Zeichnen Sie präzise 2D und 3D Grundrisse in wenigen Minuten
- Passen Sie Möbel, Materialien, Farben und Beschriftungen individuell an
- Arbeiten Sie online oder offline – Ihre Projekte synchronisieren sich automatisch in der Cloud
- Visualisieren Sie Ihre Grundrisse mit 3D Fotos, 360 Ansichten und interaktivem Live 3D
Schließen Sie sich über 10 Millionen Menschen an, die bereits professionelle Grundrisse mit RoomSketcher erstellen.
Verwandte Artikel

Grundrisse für kleine Häuser: Ideen für modernes Wohnen auf wenig Raum
Kleine Häuser bieten funktionale und stilvolle Wohnlösungen auf begrenztem Raum. In diesem Artikel stellen wir verschiedene Grundrisse für kleine Häuser vor und zeigen, wie durchdachte Planung Platz optimal nutzt. Entdecken Sie inspirierende Ideen für modernes und komfortables Wohnen.

Flexibel wohnen: Grundrisse für 3-Zimmer-Wohnungen
Grundrisse für 3-Zimmer-Wohnungen sind vielfältig und bieten Lösungen für unterschiedliche Wohnbedürfnisse. Ob kompakt oder großzügig, mit Balkon oder zusätzlichem Bad, die richtige Aufteilung sorgt für Komfort und Flexibilität. Entdecken Sie verschiedene Varianten und finden Sie den passenden Grundriss.

2-Zimmer-Wohnung Grundrisse: Ideen, Ausstattung und Planungstipps
Grundrisse für 2-Zimmer-Wohnungen gehören zu den beliebtesten Wohnformen für Singles und Paare. Sie kombinieren Funktionalität mit Komfort und bieten zahlreiche Gestaltungsmöglichkeiten. In unserem Artikel erfahren Sie, welche Ausstattungen und Varianten es gibt und worauf Sie bei der Auswahl achten sollten.