Hauspläne mit 5 Schlafzimmern: Platz für Familie, Arbeit und Alltag
Grundrisse für Häuser mit 5 Schlafzimmern bieten großzügigen Raum für Familienleben, Arbeiten von zu Hause und flexible Wohnkonzepte. In diesem Artikel zeigen wir Ihnen, worauf Sie bei der Planung achten sollten und welche Möglichkeiten diese vielseitigen Hauslayouts bieten.

Ideal für große Familien, Mehrgenerationenhaushalte sowie für Menschen, die von zu Hause aus arbeiten oder lernen. Hauspläne mit 5 Schlafzimmern beginnen bei knapp unter 280 m² und können bis weit über 740 m² reichen. Häuser am oberen Ende dieser Größenordnung gelten als luxuriös. Auch wenn die genaue Grenze umstritten ist, werden Häuser über 740 m² oft als Villen bezeichnet.
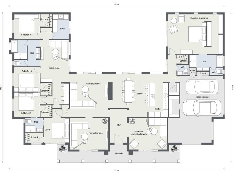
Zwei Grundrisse für Häuser mit 5 Schlafzimmern mit großzügigen Wohnbereichen, moderner Küche und funktionaler Raumaufteilung
Wenn Sie eine Familie mit vier Kindern haben und jedes Kind sein eigenes Zimmer haben soll, kann ein Haus mit 5 Schlafzimmern die richtige Wahl sein. Solche Grundrisse eignen sich auch gut für Mehrgenerationenhaushalte. Sie können gezielt nach einem komfortablen Schlafzimmer für ein oder mehrere Großeltern suchen, idealerweise in einem separaten Bereich des Hauses, um Privatsphäre zu schaffen.
Auch für kleinere Familien bieten Häuser mit 5 Schlafzimmern viel Spielraum für individuelle Nutzungsmöglichkeiten.

Flexible Nutzung der zusätzlichen Schlafzimmer
Arbeiten von zu Hause
Wenn Sie und Ihr Ehepartner beide von zu Hause aus arbeiten, was heute immer häufiger vorkommt, können fünf Schlafzimmer jeweils ein eigenes Büro ermöglichen. Das ist besonders praktisch, wenn regelmäßig telefoniert oder an virtuellen Meetings teilgenommen wird.
Kunden empfangen im eigenen Zuhause
Für Buchhalterinnen und Buchhalter, Designerinnen und Designer, Fotografinnen und Fotografen oder andere Dienstleister kann ein separates Zimmer ideal sein. Achten Sie auf Grundrisse mit einem Schlafzimmer und eigenem Bad in der Nähe des Eingangs oder mit separatem Zugang vom Vorgarten. So schaffen Sie einen professionellen, kostensparenden Raum für Kundentermine.
Raum für Hobbys
Wenn Sie ein zeitintensives Hobby wie Malen, Nähen oder Basteln haben, ist ein eigener Raum von Vorteil. So müssen Materialien nicht ständig weggeräumt werden und Sie können den Raum dauerhaft nutzen.
Lernen zu Hause
Für Heimschülerinnen, Heimschüler oder Studierende lässt sich ein freies Schlafzimmer in ein ruhiges Mini-Klassenzimmer oder einen effizienten Lernbereich verwandeln.
Fitness und Bewegung
Wenn Sie in einem kälteren Klima leben oder einfach gerne zu Hause trainieren, kann eines der zusätzlichen Zimmer als Fitnessraum genutzt werden. Platz für Matten, Geräte oder Gewichte lässt sich gut integrieren.

Ausstattung, Größe und besondere Extras
Grundriss für ein Haus mit 5 Schlafzimmern und Garage mit offenem Wohnbereich, großer Küche und funktionaler Raumaufteilung für Familien
Häuser mit 5 Schlafzimmern im kleineren Größenbereich (nahe 300 m²) enthalten meist die klassischen Räume. Mit zunehmender Wohnfläche kommen häufig zusätzliche Elemente hinzu, etwa ein Windfang oder Vorraum, eine großzügige Waschküche, getrennte Wohn- und Familienzimmer oder ein großes Hauptschlafzimmer mit eigenem Bad im Spa-Stil.
Ein einfaches Haus mit 5 Schlafzimmern verfügt meist über zwei bis drei Badezimmer. In größeren oder luxuriöseren Varianten finden sich häufig ein eigenes Bad für jedes Schlafzimmer sowie ein zusätzliches Gästebad – also insgesamt fünf oder mehr Badezimmer.

Wichtige Überlegungen bei der Planung
Grundrisse für Häuser mit 5 Schlafzimmern in einstöckiger und dreistöckiger Ausführung zur Inspiration für verschiedene Wohnkonzepte
- Einstöckig, zweistöckig oder dreistöckig? Bei Häusern mit 5 Schlafzimmern können Sie in die Breite oder in die Höhe bauen. Wenn Barrierefreiheit wichtig ist, kann ein einstöckiger Grundriss sinnvoll sein.
- Grundstücksgröße: Besonders bei eingeschossigen Häusern ist ein größeres Grundstück erforderlich, das im Budget berücksichtigt werden sollte.
- Schlafzimmeraufteilung: Überlegen Sie, ob alle Schlafzimmer beisammen liegen sollen oder ob eine Suite im Erdgeschoss für Gäste, Kundinnen und Kunden oder Großeltern sinnvoll ist.
- Pflege und Reinigung: Große Häuser bedeuten mehr Aufwand. Planen Sie ein, ob Sie selbst reinigen oder Unterstützung benötigen.
Schauen Sie sich Beispiele für Häuser mit 5 Schlafzimmern an und lassen Sie sich inspirieren, wie Ihr persönlicher Traumgrundriss aussehen könnte.

Erstellen Sie Grundrisse im Handumdrehen
Mit RoomSketcher können Sie Grundrisse für jedes Projekt zeichnen, anpassen und visualisieren:
- Zeichnen Sie präzise 2D und 3D Grundrisse in wenigen Minuten
- Passen Sie Möbel, Materialien, Farben und Beschriftungen individuell an
- Arbeiten Sie online oder offline – Ihre Projekte synchronisieren sich automatisch in der Cloud
- Visualisieren Sie Ihre Grundrisse mit 3D Fotos, 360 Ansichten und interaktivem Live 3D
Schließen Sie sich über 10 Millionen Menschen an, die bereits professionelle Grundrisse mit RoomSketcher erstellen.
Verwandte Artikel

Grundrisse für 4-Zimmer-Wohnungen mit viel Wohnkomfort
4-Zimmer-Wohnungen bieten viel Platz und Flexibilität für unterschiedliche Lebenssituationen. In diesem Artikel erfahren Sie, welche typischen Raumaufteilungen es gibt und worauf Sie bei Küche, Wohnzimmer und Stauraum achten sollten. So finden Sie den Grundriss, der optimal zu Ihren Bedürfnissen passt.

Warum Hauspläne unter 100 Quadratmetern so gut funktionieren
Hauspläne unter 100 Quadratmetern bieten vielseitige Möglichkeiten für kompaktes und funktionales Wohnen. Der Artikel zeigt typische Grundrisslösungen, gängige Konfigurationen und praktische Planungsideen für kleine Häuser, Ferienhäuser und Einliegerwohnungen.

Badezimmer richtig planen: Grundrisse, Typen und Maße
Grundrisse für Badezimmer bestimmen, wie funktional und komfortabel ein Bad im Alltag ist. In diesem Artikel erfahren Sie, welche Badtypen und Raumaufteilungen es gibt und wie Sie den passenden Grundriss für Ihre Bedürfnisse finden.