Was ein barrierefreies Badezimmer ausmacht
Barrierefreie und rollstuhlgerechte Bäder ermöglichen mehr Selbstständigkeit und Sicherheit im Alltag. In diesem Beitrag erfahren Sie, welche Grundrisse und Planungsdetails entscheidend sind, um ein Badezimmer komfortabel und zukunftssicher zu gestalten.

Barrierefreie Bäder sind für Menschen mit eingeschränkter Mobilität gedacht.
Heutzutage wollen viele Menschen „in ihrem Zuhause alt werden“ und gestalten ihre Badezimmer mit Blick auf zukünftige Anforderungen um.
Andere Hausbesitzer oder Bauherren bauen barrierefrei speziell für Menschen mit Behinderungen oder für alle, die zusätzliche Hilfe benötigen.
Zu den Elementen eines barrierefreien Badezimmers gehören breitere Türen, flache Schwellen, Haltegriffe, zusätzliche Freiflächen, Freiraum unter dem Waschbecken und vieles mehr. Werfen wir einen Blick darauf.
Der Eingang des Badezimmers
Die meisten Baderatgeber empfehlen, dass eine rollstuhlgerechte Badezimmertür möglichst 90 cm breit sein sollte.
Dies ermöglicht einen einfachen Zugang für einen Standardrollstuhl, der ca. 70 cm breit ist.
Wenn Sie nicht genügend Platz für eine so breite Tür haben, wählen Sie mindestens 80 cm, die bei Bedarf noch Platz für einen Rollstuhl oder eine Gehhilfe lässt.
Außerdem ist ein schwellenfreier Türeingang ideal für einen problemlosen Zugang für Rollstuhlfahrer.
Rollstuhl-Drehbereich
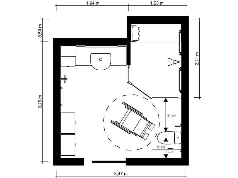
Auf Grundrissplänen für barrierefreie Badezimmer sehen Sie manchmal ein rundes Rollstuhlsymbol. Das Symbol zeigt den Bewegungsfreiraum an, der zum Wenden eines Rollstuhls erforderlich ist. Der Wenderadius sollte 150 cm im Durchmesser betragen.

Höhe des Waschbeckens und Freiraum
Waschtischhöhe richtig wählen
Die Höhe des Waschbeckens und der Waschtischplatte ist ein wichtiger Faktor für die Mobilität. Beim Benutzen des Waschbeckens sollten Sie sich nicht weit nach vorne beugen müssen.
Für stehende Nutzer liegt eine angenehme Waschtischhöhe bei etwa 90 cm, abhängig von der Körpergröße.
Für Rollstuhlfahrer sollte das Waschbecken in der Regel niedriger angebracht werden, meist bei etwa 80 cm, da ein höheres Becken im Sitzen nicht gut erreichbar ist.
Unterfahrbarkeit sicherstellen
Damit ein Rollstuhlfahrer direkt an das Waschbecken heranfahren kann, sollte der Bereich darunter offen gestaltet sein. Geeignet sind Sockelwaschbecken oder Waschtische ohne Unterschränke oder Schubladen.
Der empfohlene Freiraum beträgt:
- 67 cm Höhe (vom Boden bis zur Unterkante der Arbeitsplatte)
- 90 cm Breite
- 55 cm Tiefe, gemessen von der Vorderkante der Arbeitsplatte
Maße an den Nutzer anpassen
Diese Maße dienen als Richtwerte und können – je nach Körpergröße, Rollstuhltyp und individuellen Bedürfnissen – angepasst werden. Entscheidend ist, dass das Waschbecken bequem erreichbar ist und ausreichend Bewegungsfreiheit bietet.

Platz um die Toilette
Freiraum für Anfahrt und Transfer
Ausreichender Platz vor und neben der Toilette ist entscheidend, damit ein Rollstuhl gut heranfahren kann und ein sicherer Transfer möglich ist.
Die Mittellinie der Toilette sollte etwa 45 cm von jeder Seitenwand entfernt liegen. So bleibt genügend Raum für Haltegriffe und seitliche Bewegung.
Zusätzlich sollten Sie auf mindestens 90 cm freien Raum auf einer Seite der Toilette achten, um den Transfer vom Rollstuhl auf die Toilette zu erleichtern.
Bewegungsfläche einplanen
Vor dem Transferbereich sollte ein Wendekreis von etwa 90 cm eingeplant werden, damit sich der Rollstuhl problemlos drehen lässt.
Sitzhöhe der Toilette
Ziehen Sie eine Toilette in Komforthöhe in Betracht. Diese ist höher als Standardmodelle und entlastet Rücken und Knie beim Hinsetzen und Aufstehen, was besonders für Menschen mit eingeschränkter Mobilität hilfreich ist.

Überlegungen zu Dusche und Bad
Dusche statt Badewanne
Ein barrierefreier und rollstuhlgeeigneter Badezimmergrundriss sieht häufig eine Dusche statt einer Badewanne vor. Eine Dusche erleichtert den Zugang und erhöht die Sicherheit, insbesondere bei eingeschränkter Mobilität.
Bewegungsfläche und Einstieg
Der Duschbereich sollte großzügig bemessen sein, da häufig eine Pflegeperson oder ein Angehöriger beim Duschen helfen muss. Empfohlen wird eine Bewegungsfläche von etwa 150 × 150 cm im Duschraum.
Der Einstieg in die Dusche sollte mindestens 90 cm breit und idealerweise ebenerdig sein, sodass ein Rollstuhl direkt in den Duschbereich hineinfahren kann.
Sitzmöglichkeiten und Haltegriffe
Wenn Sie eine Sitzmöglichkeit vorsehen, empfiehlt sich ein klappbarer Duschsitz, der bei Bedarf aus dem Weg geräumt werden kann. Alternativ können auch ein Duschstuhl oder ein stabiler Hocker verwendet werden.
Weitere bewährte Elemente des universellen Designs sind eine Handbrause sowie mehrere Haltegriffe, die zusätzliche Sicherheit bieten.
Alternativen mit Badewanne
Wenn eine Badewanne gewünscht ist, eignen sich begehbare Badewannen mit Tür besonders gut. Eine weitere Möglichkeit ist der Einbau eines Haltegriffs in der Nähe des Wanneneinstiegs.
Auch eine Wanne mit breiter Umrandung kann sinnvoll sein, da sie eine Sitzfläche bietet, auf der sich eine Person abstützen und die Beine sicher in die Wanne drehen kann.

Normen für barrierefreies Design
Ein nützliches Nachschlagewerk ist die Norm Barrierefreies Bauen - DIN 18040-2 - die Richtlinien für Menschen mit Behinderungen enthält, darunter auch für die Gestaltung von Badezimmern.
Wir haben einige dieser Richtlinien sowie Beispiele für barrierefreie und rollstuhlgeeignete Grundrisse in dieses Thema aufgenommen.
Sind Sie bereit, einen Grundriss für ein barrierefreies Bad zu entwerfen? Wenn Sie sich über barrierefreie Badplanung informiert haben, können Sie mit unseren Vorlagen Ihre Gestaltungsideen ausprobieren und Ihr perfektes Layout finden.

Erstellen Sie Grundrisse im Handumdrehen
Mit RoomSketcher können Sie Grundrisse für jedes Projekt zeichnen, anpassen und visualisieren:
- Zeichnen Sie präzise 2D und 3D Grundrisse in wenigen Minuten
- Passen Sie Möbel, Materialien, Farben und Beschriftungen individuell an
- Arbeiten Sie online oder offline – Ihre Projekte synchronisieren sich automatisch in der Cloud
- Visualisieren Sie Ihre Grundrisse mit 3D Fotos, 360 Ansichten und interaktivem Live 3D
Schließen Sie sich über 10 Millionen Menschen an, die bereits professionelle Grundrisse mit RoomSketcher erstellen.
Verwandte Artikel

Warum Hauspläne mit 3 Schlafzimmern so beliebt sind
Grundrisse für Häuser mit 3 Schlafzimmern bieten eine ausgewogene Mischung aus Komfort und Flexibilität. Der Artikel zeigt typische Raumaufteilungen, wichtige Planungsaspekte und praktische Möglichkeiten für unterschiedliche Lebenssituationen. Entdecken Sie, welche Varianten zu Ihren Wohnbedürfnissen passen könnten.

Mittelgroße Badezimmer richtig planen: Grundrisse und Maße
Grundrisse für mittelgroße Badezimmer erfordern eine sorgfältige Planung, um Platz, Komfort und Funktion optimal zu verbinden. Dieser Artikel zeigt typische Layouts, gängige Raumgrößen und bewährte Anordnungen. Erfahren Sie, welche Lösungen sich für unterschiedliche Grundformen eignen.

Gut geplant schlafen besser: Grundrisse für Schlafzimmer
Ein durchdachter Grundriss ist entscheidend für ein funktionales und gemütliches Schlafzimmer. Erfahren Sie, wie Sie mit passenden Raumaufteilungen, Möblierungsideen und Gestaltungstipps Ihr Schlafzimmer optimal planen können. Entdecken Sie Inspirationen und Beispiele für Grundrisse für Schlafzimmer, die Komfort und Stil vereinen.