Kellerwohnung Grundriss

1003 sq ft
93 m²
1 Etage
2 Schlafzimmer
1 Badezimmer

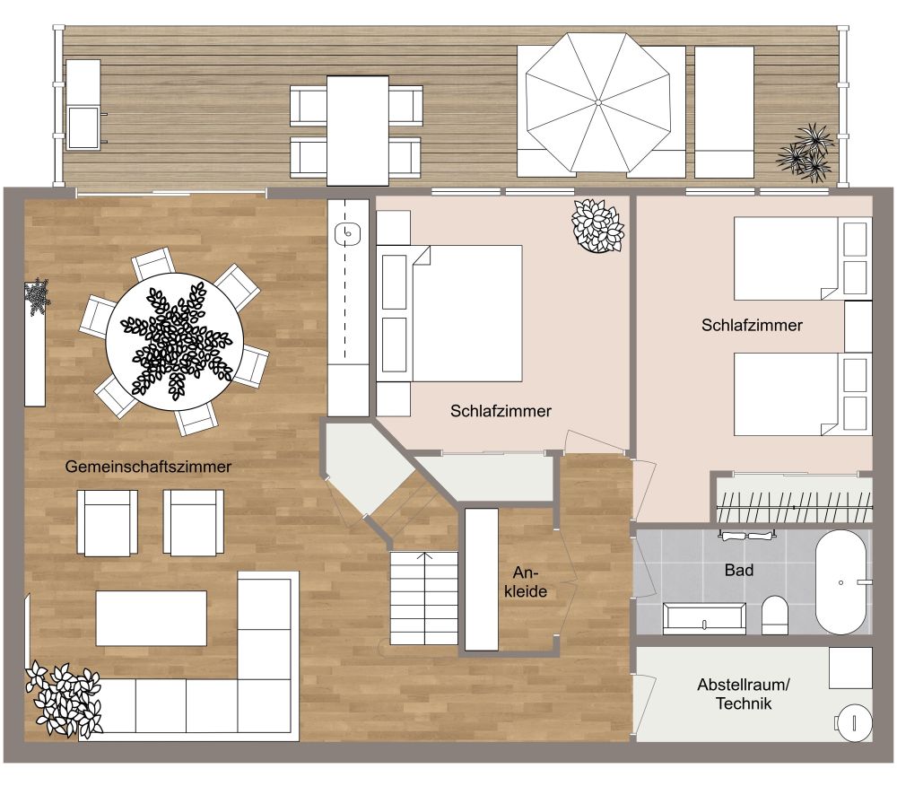
Frisch, modern und attraktiv – dieser Kellerwohnung Grundriss hat es in sich. Das offene Familienzimmer ist groß genug, um bequem eine gemütliche Couchgarnitur, zwei übergroße Sessel und eine große runde Essgarnitur mit sechs Stühlen unterzubringen. Ein neutrales Farbschema verleiht den Räumen eine beruhigende, moderne Ausstrahlung. Die Wohnung verfügt über zwei Schlafzimmer, eines mit einem Doppelbett und das andere mit zwei Einzelbetten. Das Badezimmer ist mit einem auffälligen Fliesenboden und einer modernen ovalen Badewanne ausgestattet. Die Abstellkammer bietet viel Stauraum. Um diesen Keller noch spektakulärer zu machen, gibt es eine große Terrasse, die sich von einer Seite der Wohnung zur anderen erstreckt und reichlich Platz für Liegestühle, ein Essgeschirr im Freien und Platz zum Beisammensein mit Freunden bietet. Ihre Familie und Ihre Freunde werden sich in dieser schönen Kellerwohnung sicher wohlfühlen.


Hergestellt von
Home Designs

Ähnliche Grundrisse


Mehr von diesem Anbieter