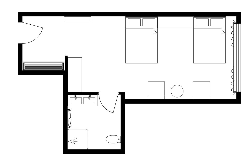
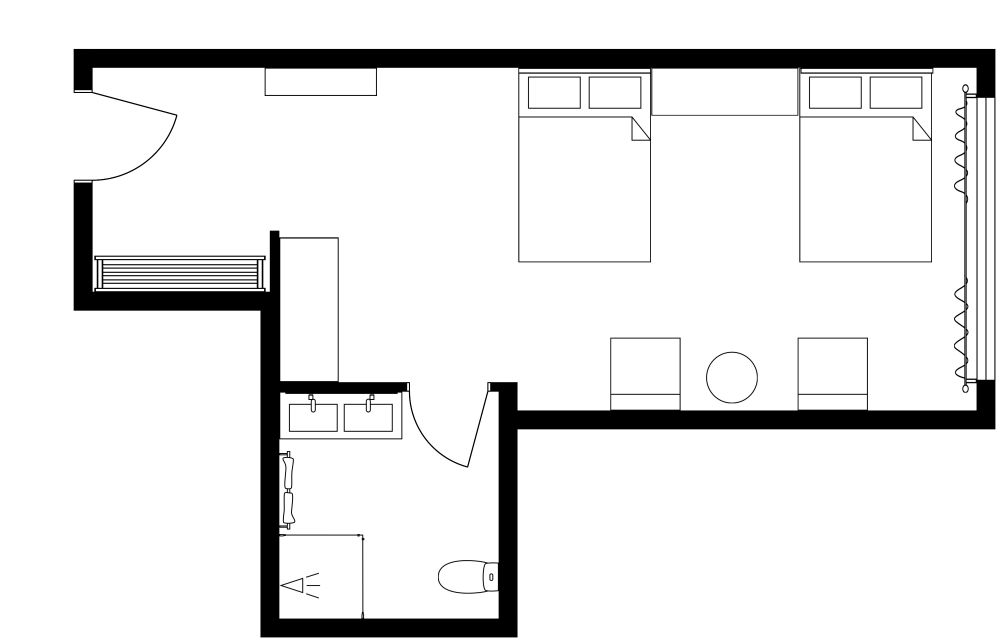
Doppel-Hotelzimmer

403 sq ft
37 m²

In diesem ebenso komfortablen wie attraktiven Doppel-Hotelzimmer werden Sie sich sofort wie zu Hause fühlen. Beim Betreten des ruhigen Raums finden Sie dunkle Hartholzböden, schwarze Akzente und Möbel sowie schön gestaltete Wände. Die beiden Doppelbetten sind mit hübschem, cremefarbenem Bettzeug bezogen. Zwei passende Sessel und ein Tisch stehen den Betten gegenüber, daneben befindet sich ein übergroßes Fenster. Fließende Vorhänge sorgen für einen Hauch von Farbe und Privatsphäre. Ein moderner Kronleuchter und ein großer schwarz-weißer Wandbehang unterstreichen den modernen Charme des Zimmers. In der Ecke des Raumes befindet sich ein hübscher Kleiderschrank, der viel Platz für Ihre persönlichen Gegenstände bietet. Das angeschlossene Badezimmer verfügt über einen atemberaubenden Jade-Fliesenboden, eine schicke begehbare Dusche sowie ein eigenes und ein separates Waschbecken. Dieses farbenfrohe und kühne, aber dennoch entspannende und raffinierte Doppel-Hotelzimmer strahlt modernen Luxus aus.


Hergestellt von
Hotel Layouts

Ähnliche Grundrisse


Mehr von diesem Anbieter