Cocktailbar NYC

1777 sq ft
165 m²

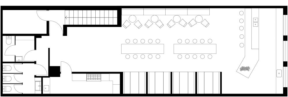
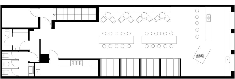
In dieser Cocktailbar NYC herrscht moderne Schlichtheit vor. Der lange, rechteckige Raum ist mit stimmungsvollen blaugrauen Wänden und einem hellen Parkettboden ausgestattet. Eine schlichte schwarze Tischplatte befindet sich auf einem Paar langer, hoher Tische mit Barhockern in der Mitte des Raumes. Eine lange, elfenbeinfarbene gepolsterte Bank verläuft entlang einer Seite der Wand und bildet eine Ergänzung zu den runden, schwarzen Tischen und weißen Stühlen. Auf der anderen Seite des Raums befinden sich gemütliche Sitzecken mit Holztischen und elfenbeinfarbenen Sitzgelegenheiten. Leuchtend gelbe Lampen und passende Hängelampen setzen einen farblichen Akzent zum dezenten Farbschema der einzelnen Tischgruppen. Der Küchenbereich verfügt über einen hellgrauen Bodenbelag und eine großzügige Arbeitsfläche. Die Toiletten befinden sich im hinteren Teil der Bar, neben der Treppe und einem großzügigen Abstellraum.


Hergestellt von
Restaurant Layouts

Ähnliche Grundrisse


Mehr von diesem Anbieter