Küchen-Grundriss eines Restaurants

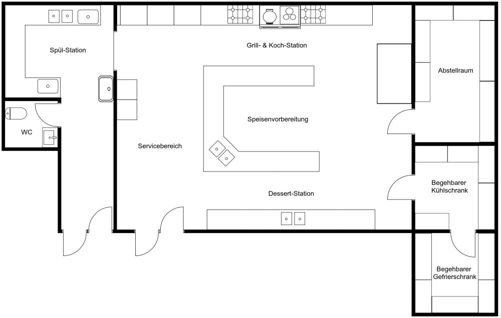
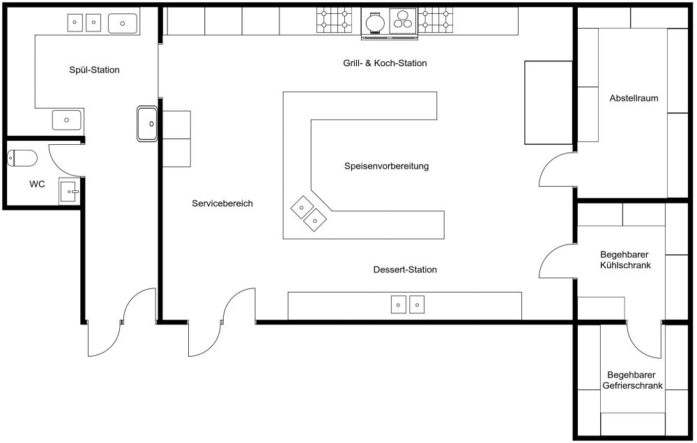
Die Arbeit in diesem Küchengrundriss eines Restaurants wird dank des modernen Stils und des offenen Raums ein Vergnügen sein. Die Hauptküche verfügt über einen überdimensionalen Raum mit zwei Türen zum Betreten und Verlassen. An einer Wand befindet sich eine lange weiße Arbeitsplatte mit zwei Spülbecken. Die angrenzende Wand beherbergt den Herd und viele weiße Schränke zur Aufbewahrung. In der Mitte der Küche befindet sich ein riesiger U-förmiger Tresen mit Schränken darunter. An die Küche schließen sich drei Abstellräume an, die sich perfekt für die Lagerung von Lebensmitteln und Vorräten eignen. Neben der Hauptküche befindet sich ein kleinerer Abwaschraum mit mehreren Waschbecken und einem U-förmigen Tresen. An den Waschraum schließt sich ein Einraumbad an. Es ist mit einer Toilette und einem kleinen Waschbecken in der Ecke ausgestattet. In der Küche und im Waschraum gibt es Schieferboden und weiße Wände.

Hergestellt von
Restaurant Layouts
1074 sq ft
100 m2
1 Etage

Dieser Grundriss kann angepasst werden.

Dieses Projekt bearbeiten

Möchten Sie diesen Grundriss bearbeiten oder einen eigenen erstellen?

Download App

Ähnliche Grundrisse


Mehr von diesem Anbieter