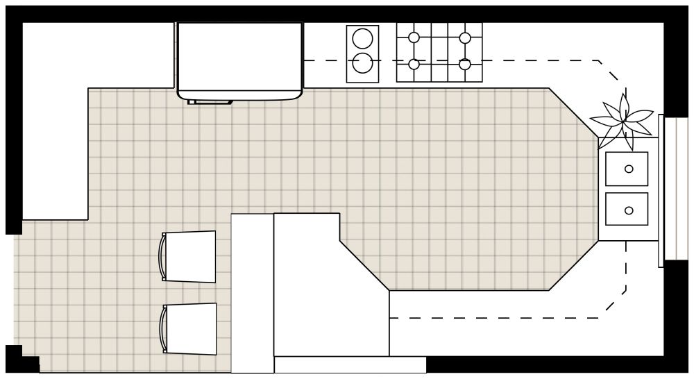
Landhausküche-Grundriss

197 sq ft
18 m²

Sie können die Maserung des Holzes in den Hartholzböden und die Zähler von diesem Landhausküche-Grundriss, die eine warme, gemütliche Optik hat, sehen. Auf allen vier Seiten der Küche gibt es Arbeitsflächen sowie Ober- und Unterschränke, die viel Stauraum bieten. Es gibt einen Kühlschrank in einem warmen Cremeton, einen Herd, einen Backofen, einen Kamin, eine Spüle mit zwei Becken und einen Tresen, der in einen Tisch mit zwei cremefarbenen Stühlen übergeht. Über dem Waschbecken befindet sich ein Fenster, das für natürliches Licht sorgt. Insgesamt handelt es sich um eine wunderschöne, rustikale Küche mit allen Annehmlichkeiten, die man zum Kochen und Backen braucht, und mit viel Platz auf der Arbeitsplatte für alle Kleingeräte, die man sich zulegen möchte. Außerdem können Sie die Wärme dieser Küche genießen, indem Sie an dem gemütlichen Esstisch in der Küche essen.


Hergestellt von
Kitchen Designs

Ähnliche Grundrisse


Mehr von diesem Anbieter