U-förmige Küche mit Halbinsel

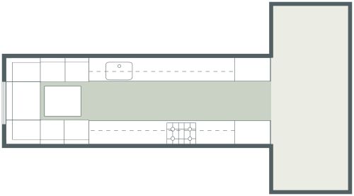
Entdecken Sie in dieser U-förmigen Küche mit Halbinsel einen großzügigen Raum zum Essen, Unterhalten und Zubereiten von Mahlzeiten. Naturholzböden und Arbeitsplatten im Stil von Metzgerblöcken verleihen dem Raum ein warmes, gemütliches Ambiente, während ein separater Essbereich perfekt für Familienmahlzeiten ist. In der einen Küchenecke befindet sich ein weißer, doppeltüriger Kühlschrank, gefolgt von einer großen Arbeitsfläche für die Zubereitung von Mahlzeiten. Um die Ecke befindet sich ein Doppelwaschbecken, das von einer noch größeren Arbeitsfläche flankiert wird, und parallel zum Kühlschrank befinden sich ein Herd mit Abdeckhaube und ein Backofen. Hinter der U-förmigen Theke erwartet Sie ein Essbereich. Richten Sie diesen Raum mit einem großen Esstisch ein, an dem bis zu sechs Gäste Platz finden und genießen Sie das warme, natürliche Sonnenlicht, das durch das Fenster an der hinteren Wand einfällt.

Hergestellt von
Kitchen Designs
269 sq ft
25 m2
1 Etage

Dieser Grundriss kann angepasst werden.

Dieses Projekt bearbeiten

Möchten Sie diesen Grundriss bearbeiten oder einen eigenen erstellen?

Download App

Ähnliche Grundrisse


Mehr von diesem Anbieter