Doppelhausplan

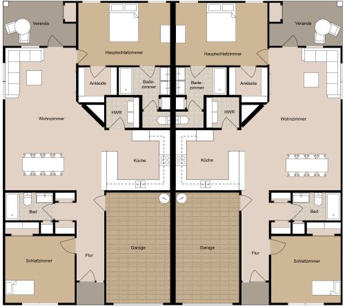
Erdtöne herrschen in diesem modernen Doppelhausplan vor. Wenn Sie durch die Eingangstür auf beiden Seiten des Doppelhauses treten, werden Sie einen offenen Grundriss vorfinden. Rustikale Holzböden erstrecken sich über das gesamte Haus. Das Wohnzimmer verfügt über eine auffällige Holzvertäfelung, die den Mittelpunkt des Raumes bildet, während die Küche mit dunklen Schränken und gesprenkelten Marmorarbeitsplatten ausgestattet ist. Die beiden Schlafzimmer sind geräumig und hell und verfügen über zusätzliche Holzpaneele, die das klare Weiß der Wände auflockern. Die beiden Vollbäder sind mit schönen, detaillierten Fliesen und Messingbeschlägen ausgestattet. Auf beiden Seiten des Doppelhauses befindet sich eine Garage mit einem Auto, die durch eine Tür am Essbereich zugänglich ist. Ihre Familie wird dieses einfache, aber komfortable Doppelhaus sicher lieben.

Hergestellt von
Home Designs
938 sq ft
87 m2
1 Etage
2 Schlafzimmer
2 Badezimmer

Dieser Grundriss kann angepasst werden.

Dieses Projekt bearbeiten

Möchten Sie diesen Grundriss bearbeiten oder einen eigenen erstellen?

Download App

Ähnliche Grundrisse


Mehr von diesem Anbieter