Kleines U-förmiges Küchendesign

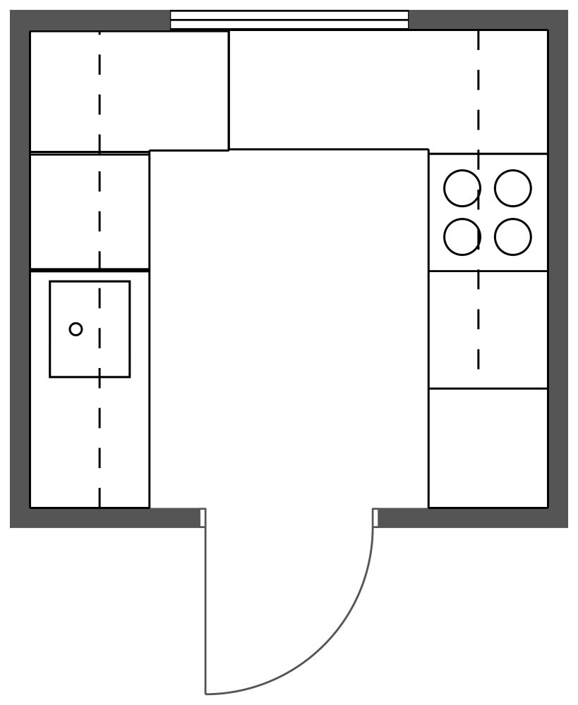
Helligkeit und Stil sind das Wichtigste in diesem kleinen U-förmigen Küchendesign. Durch die Tür gelangen Sie in eine kleine Küche, die sowohl funktional als auch hübsch ist. Hellblaue Schränke sind mit einer U-förmigen, gesprenkelten grauen Arbeitsplatte kombiniert. Die Arbeitsplatte bietet viel Platz für Geräte, Dekoration und natürlich zum Kochen. Ein Elektroherd und ein Kühlschrank befinden sich auf der rechten Seite der Küche, während sich Spüle und Geschirrspüler auf der linken Seite befinden. Ein einzelnes, großes Fenster befindet sich an der Hauptwand des Raumes und dient als Blickfang und Quelle des dringend benötigten natürlichen Lichts. Helle Holzböden und Geräte aus Edelstahl verleihen dieser Küche ein modernes Ambiente, in dem Sie sich beim Zubereiten von Mahlzeiten für Ihre Familie und Freunde wie zu Hause fühlen werden.

Hergestellt von
Kitchen Designs
68 sq ft
6 m2
1 Etage

Dieser Grundriss kann angepasst werden.

Dieses Projekt bearbeiten

Möchten Sie diesen Grundriss bearbeiten oder einen eigenen erstellen?

Download App

Ähnliche Grundrisse


Mehr von diesem Anbieter