Küchenlayout für eine Wand

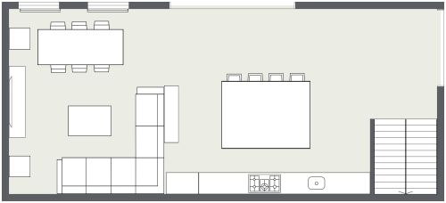
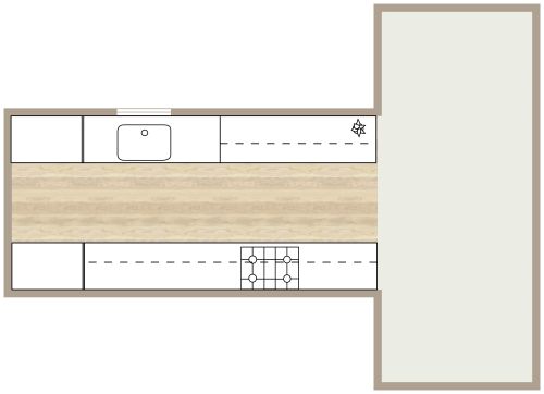
Diese helle, moderne und schlichte Küchenlayout für eine Wand sieht genauso einladend und luxuriös aus, wie sie sich anfühlt. Man betritt die Küche durch ein Paar weiße Holztüren und findet einen offenen Grundriss mit genügend Platz für eine kleine Sitzgruppe, wie diesen minimalistischen weißen Esstisch und glamouröse, graugrüne Stühle mit goldenen Beinen. Die hellen Hartholzböden und die strahlend weißen Schränke verleihen dem Raum viel Helligkeit, wodurch dieser insgesamt geräumiger erscheint. Der Arbeitsbereich der Küche befindet sich an einer einzigen Wand und umfasst graue und weiße Granit Arbeitsplatten, Edelstahlgeräte und einen eleganten schwarzen Kühlschrank. Eine doppelte, grau verglaste Schiebetür lässt viel natürliches Sonnenlicht herein und verleiht dem Raum Wärme und Persönlichkeit. Der mühelose Stil dieser einwändigen Küche wird dafür sorgen, dass Ihre Familie gerne Zeit in ihr verbringt.

Hergestellt von
Kitchen Designs
244 sq ft
23 m2
1 Etage

Dieser Grundriss kann angepasst werden.

Dieses Projekt bearbeiten

Möchten Sie diesen Grundriss bearbeiten oder einen eigenen erstellen?

Download App

Ähnliche Grundrisse


Mehr von diesem Anbieter