Kleiner U-förmiger Küchengrundriss

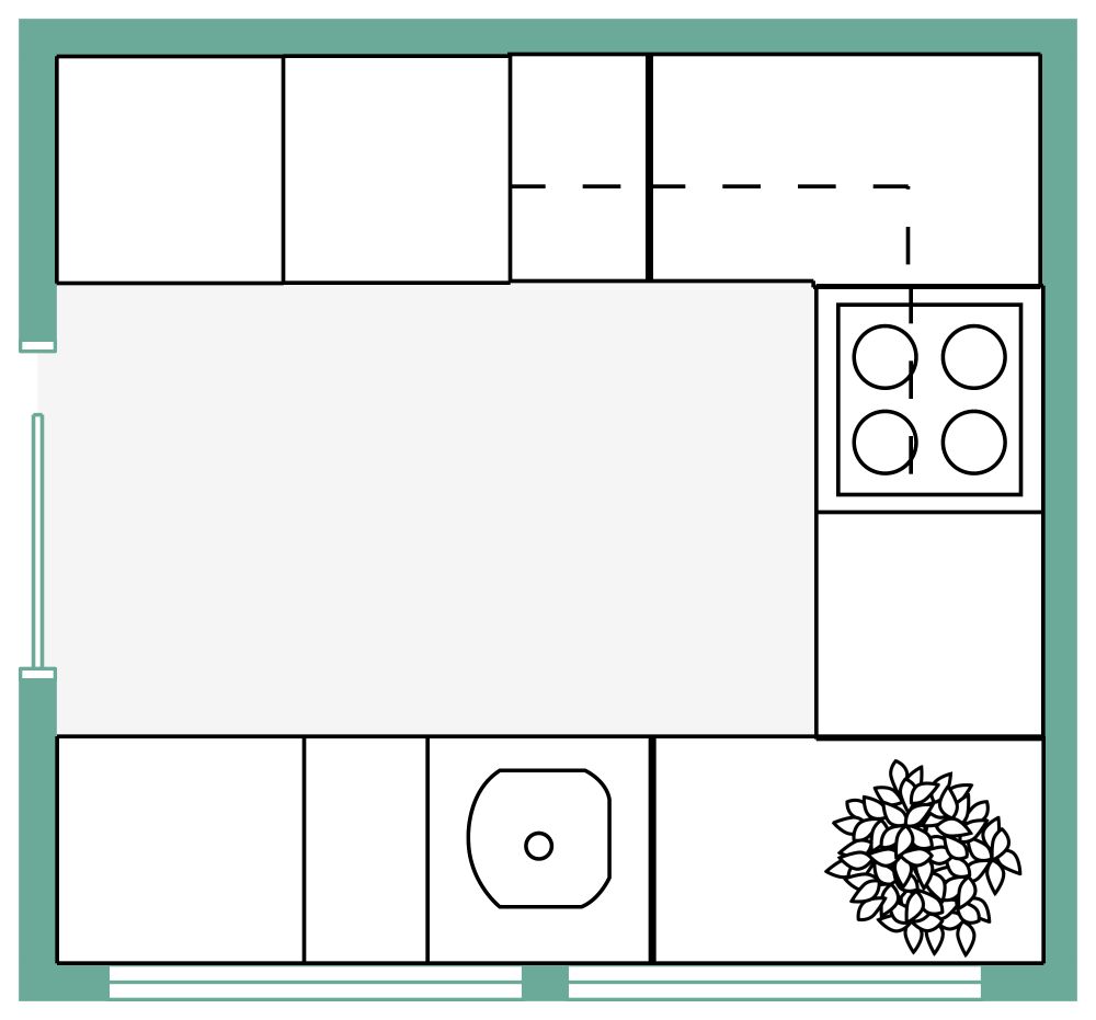
Zeitgenössisch, heimelig und praktisch – dieser kleine U-förmige Küchengrundriss bietet alles, was Sie brauchen, um bequem zu kochen und Gäste zu unterhalten, wenn der Platz in Ihrem Zuhause begrenzt ist. Die Küche verfügt über ein U-förmiges Design mit einer modernen Arbeitsplatte aus grauem Marmor, Schränken aus natürlichem weißem Eichenholz und einem hellen Hartholzboden. Ein Paar Edelstahlöfen sind in eine Schrankwand auf einer Seite des Raums eingebaut, während sich das elektrische Kochfeld an der Wand daneben befindet. Die Edelstahlspüle und der Geschirrspüler befinden sich an der verbleibenden Wand, direkt gegenüber den Öfen. Salbeigrüne Wände verleihen der Küche zusammen mit einer kleinen Topfpflanze als Accessoire eine warme und einladende Ästhetik. Die Schiebetür spart Platz und trägt gleichzeitig zum sauberen, modernen Ambiente der Küche bei.

Hergestellt von
Kitchen Designs
69 sq ft
6 m2
1 Etage

Dieser Grundriss kann angepasst werden.

Dieses Projekt bearbeiten

Möchten Sie diesen Grundriss bearbeiten oder einen eigenen erstellen?

Download App

Ähnliche Grundrisse


Mehr von diesem Anbieter