Barrierefreies Badezimmer-Layout

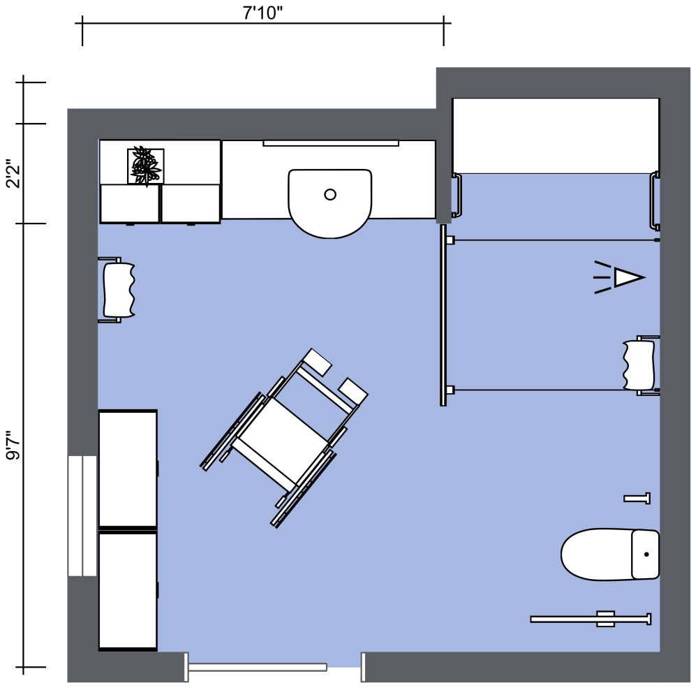
Persönlichkeit und Funktionalität stehen bei diesem barrierefreien Badezimmer-Layout im Vordergrund. Der graue und taupefarbene Fliesenboden ergänzt die hölzernen Details in diesem Raum, einschließlich der Waschtischplatte und eines eingebauten Sitzes in der Dusche. Durch die Schiebetür gelangt man in einen offenen Raum mit einer Toilette auf der rechten Seite, einem Hängeschrank auf der linken Seite, direkt gegenüber dem Eingang, und einer geräumigen Glasdusche in der Ecke. Ein kleines Fenster in der Ecke des Raums über dem Hängeschrank lässt das dringend benötigte natürliche Licht herein. Ein Schrank neben dem Waschbecken bietet Stauraum für Toilettenartikel und Wäsche. Neben der Toilette und in der Dusche befinden sich praktische Haltegriffe. Die gefliesten Wände und Akzente im gesamten Raum verleihen ihm ein erdiges, stimmungsvolles Ambiente.

Hergestellt von
Andrea Platzer
139 sq ft
13 m2
1 Etage

Dieser Grundriss kann angepasst werden.

Dieses Projekt bearbeiten

Möchten Sie diesen Grundriss bearbeiten oder einen eigenen erstellen?

Download App

Ähnliche Grundrisse


Mehr von diesem Anbieter