Senioren-Badezimmer

143 sq ft
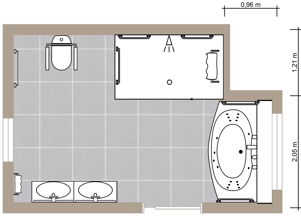
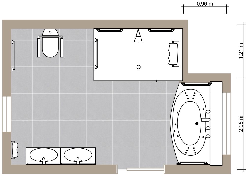
13 m²

Dieses stilvolle, praktische und komfortable Senioren-Badezimmer wird Ihnen sicher gefallen. Der Raum verfügt über eine Schiebetür, eine geräumige begehbare Dusche mit Glaswänden und ein Paar Waschtische mit strahlend weißen Waschbecken. Die wunderschönen Fußböden aus Hartholz und weißen Subway-Fliesen sind perfekt mit tealfarbenen und weißen Fliesen in der Dusche und im Toilettenbereich kombiniert. In der Ecke des Raumes befindet sich eine große Whirlpool-Badewanne mit einem großen Fenster direkt darüber und einer Ablagefläche für Toilettenartikel oder Dekorationen wie Kerzen. Ein weiteres kleines Fenster befindet sich an der Wand gegenüber der Badewanne. An der Toilette, der Badewanne und der Toilette sind Haltegriffe angebracht, so dass der gesamte Raum sicher für jedermann zugänglich ist.


Hergestellt von
Andrea Platzer

Ähnliche Grundrisse


Mehr von diesem Anbieter