Smultronstället 149 Grundrisse

1671 sq ft
155 m²
1 Etage
4 Schlafzimmer
2 Badezimmer

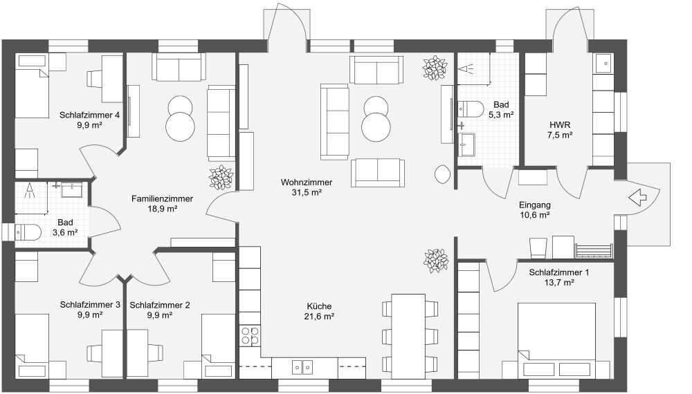
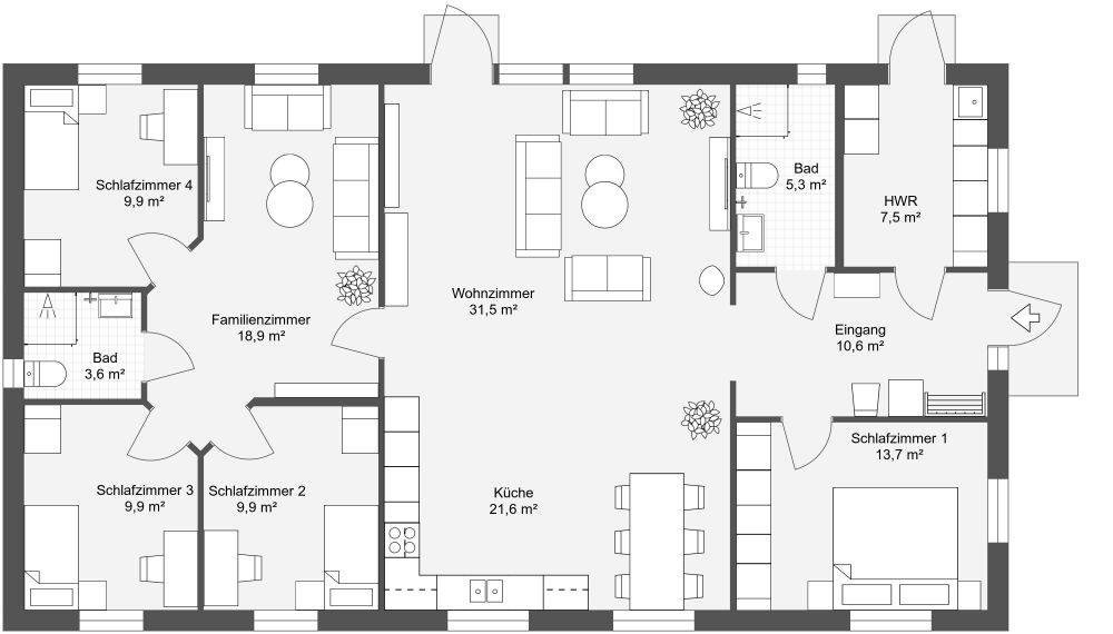
Der Smultronstället 149 Grundrisse mit geteilten Schlafzimmern ist bei denjenigen beliebt, die das Hauptschlafzimmer von den anderen Schlafzimmern getrennt haben möchten. Eine kompakte Veranda führt Sie in einen großen Eingangsbereich, komplett mit Garderobe und Schuhablage, separater Waschküche und Badezimmer. Der helle und geräumige, offene Wohnraum verfügt über einen zentralen Kamin und eine große L-förmige Küche mit übergroßem Kühlschrank, Wandofen, Herd, Doppelspüle und Stauraum in den Oberschränken. Ein nahe gelegener Tisch für 6 oder 8 Gäste ist praktisch zum Vorbereiten und Bewirten. Auf der rechten Seite des Grundrisses befindet sich ein geräumiges Hauptschlafzimmer mit einer langen Stauraumwand. Auf der linken Seite sind drei weitere Schlafzimmer zusammengefasst, die sich ein Badezimmer mit Waschbecken, Toilette und Dusche teilen. Richten Sie den angrenzenden Familienraum je nach Bedarf als Spielzimmer, Jugendzimmer, Arbeitszimmer, Fitnessraum oder Büro ein.


Hergestellt von
Bra Hus

Ähnliche Grundrisse


Mehr von diesem Anbieter