Ängen 121 Grundrisse

1308 sq ft
122 m²
1 Etage
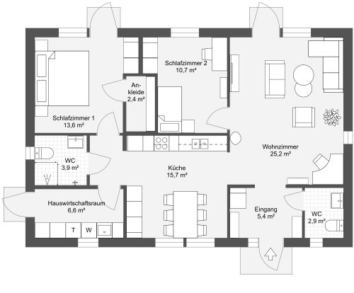
3 Schlafzimmer
2 Badezimmer

Mit drei Schlafzimmern und zwei Bädern hat dieser Ängen 121 Grundrisse eine benutzerfreundliche Aufteilung in einem traditionellen, rechteckigen Grundriss. Der offene Eingangsbereich verfügt über einen Garderobenschrank, einen Stuhl, Ablagehaken und ein großes Bad. Köche werden sich von der L-förmigen Küche angezogen fühlen, die einen großen Kühlschrank, einen Wandofen, eine Spüle, einen Herd sowie genügend Stauraum in den oberen Schränken bietet. Eine Glastür bietet einfachen Zugang zu einer großen Außenterrasse oder einem Innenhof, der sich perfekt für Mahlzeiten im Freien eignet. Neben der Küche befindet sich ein großer Essbereich, der Platz für einen runden oder rechteckigen Tisch bietet. Der Essbereich hat große Fenster, durch die man die Aussicht bewundern kann, und öffnet sich zu einem gemütlichen Wohnzimmer. Am anderen Ende der Wohnung befindet sich das geräumige Hauptschlafzimmer, das Platz für ein Queensize- oder Kingsize-Bett bietet und über eine Terrassentür verfügt, die einen einfachen Zugang ins Freie ermöglicht. Außerdem gibt es ein Badezimmer, zwei mittelgroße Schlafzimmer und einen großen separaten Hauswirtschaftsraum mit viel Arbeitsfläche, Stauraum und einem bequemen Zugang nach draußen.


Hergestellt von
Bra Hus

Ähnliche Grundrisse


Mehr von diesem Anbieter