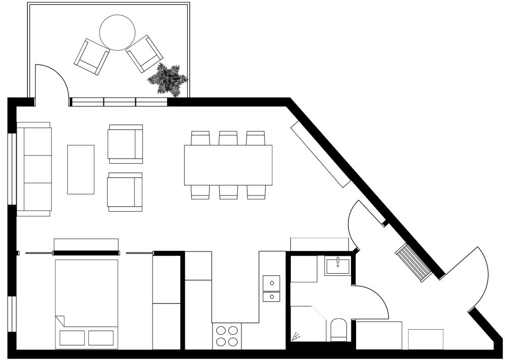
Grundriss für eine 2-Zimmer-Wohnung mit spitzem Winkel

Mit einem Hauch von Kreativität lässt sich auch ein unregelmäßig geschnittener Raum in ein ansprechendes und funktionales Zuhause verwandeln. Ein Beispiel hierfür ist dieser Grundriss für eine 2-Zimmer-Wohnung mit spitzem Winkel. Direkt am Eingang eröffnet sich ein dreieckiger Flur, der mit Stauraum und einem Schuhregal praktisch genutzt wird. Unmittelbar davor liegt das Badezimmer, das eine Dusche, ein Waschbecken, eine Toilette und eine Waschmaschine bietet. Durch eine weitere Tür begegnet Ihnen zur Rechten ein Esstisch mit sechs Stühlen, während sich gegenüber die Küche mit einem U-förmigen Tresen, einem Kühlschrank, einem Herd und einer Doppelspüle befindet. Der Essbereich fließt sanft in den Wohnbereich über, welcher mit einem Sofa, zwei Sesseln und einem Couchtisch ausgestattet ist. Das separat gehaltene Schlafzimmer verfügt über zwei Zugänge und bietet ein Doppelbett sowie einen Einbauschrank. Zudem lädt ein kleiner Balkon mit Platz für zwei Sessel und ein Couchtisch zum Verweilen ein.

Hergestellt von
Apartment Designs
488 sq ft
45 m2
1 Etage
1 Schlafzimmer
1 Badezimmer

Dieser Grundriss kann angepasst werden.

Dieses Projekt bearbeiten

Möchten Sie diesen Grundriss bearbeiten oder einen eigenen erstellen?

Download App

Ähnliche Grundrisse


Mehr von diesem Anbieter