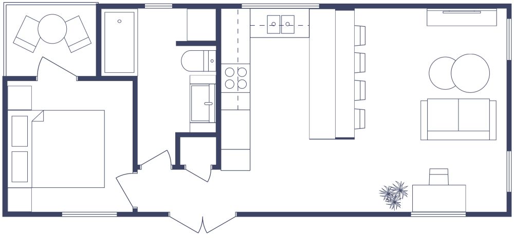
Grundriss für ein Tiny House mit 1 Schlafzimmer

Mit einem Eingangsbereich, einem privaten Balkon vor dem Schlafzimmer und einer Waschmaschine/Trockner verfügt dieser Grundriss für ein Tiny House mit 1 Schlafzimmer über Funktionen, die normalerweise in größeren Häusern zu finden sind. Betreten Sie den großzügigen Eingangsbereich, in dem Ihre Garderobe und Taschen willkommen sind. Direkt rechts entfaltet sich ein offener Raum, der eine modern gestaltete, U-förmige Küche und einen gemütlichen Wohnbereich in sich vereint. Die Küche begeistert mit einer deckenhohen Speisekammer, einem großzügigen Kühlschrank, einem Herd, einer Doppelspüle und reichlich Arbeitsfläche. Genießen Sie entspannte Momente an der großzügigen Frühstückstheke, sei es bei einer Tasse Kaffee mit Freunden oder beim geselligen Kochen. Der flexible Wohnbereich bietet verschiedene Einrichtungsmöglichkeiten und wurde von uns bereits durch einen funktionalen Arbeitsplatz für Heimarbeit oder Studium ergänzt. Sie werden den im Badezimmer integrierten Waschmaschinen- und Trocknerbereich zu schätzen wissen. Ein besonderes Highlight stellt die private Terrasse dar, die direkt vom Schlafzimmer aus erreichbar ist.

Hergestellt von
Home Designs
431 sq ft
40 m2
1 Etage
1 Schlafzimmer
1 Badezimmer

Dieser Grundriss kann angepasst werden.

Dieses Projekt bearbeiten

Möchten Sie diesen Grundriss bearbeiten oder einen eigenen erstellen?

Download App

Ähnliche Grundrisse


Mehr von diesem Anbieter