Geräumiges Badezimmer im Boho-Chic

253 sq ft
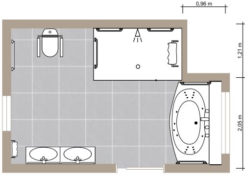
24 m²

Entdecken Sie die Spa-inspirierten Ideen dieses geräumigen Badezimmers im Boho-Chic. Der Grundriss des Bads verfügt über einen Eingangsbereich, der entweder in einen privaten Toilettenraum mit eigenem Waschbecken oder in einen großen rechteckigen Raum mit zwei Waschbecken, einer offenen Dusche und einer großzügigen, freistehenden Badewanne führt. Es gibt viel Platz für mehrere Personen, die sich dieses Bad teilen können. Die luxuriöse Wanne befindet sich neben einem bodentiefen Fenster, das die Natur in den Raum bringt. Die vom Boho-Stil inspirierte neutrale Farbpalette besteht aus Hellgrau, Weiß und Rosatönen. Mosaikfliesen auf dem Boden sind ein typisches Merkmal des Bohemian-Stils, und hier wurden sie mit Kieselsteinfliesen an der Wand kombiniert ‒ das sorgt für viel Textur und Interesse. Wasserhähne, Dusch- und Badewannenarmaturen und Handtuchringe in Roségold verleihen diesem Hauptbadezimmer im Boho-Stil eine sanfte, romantische Note.


Hergestellt von
Andrea Platzer

Ähnliche Grundrisse


Mehr von diesem Anbieter