Schmale Galeerenküche mit Frühstücksecke

164 sq ft
15 m²

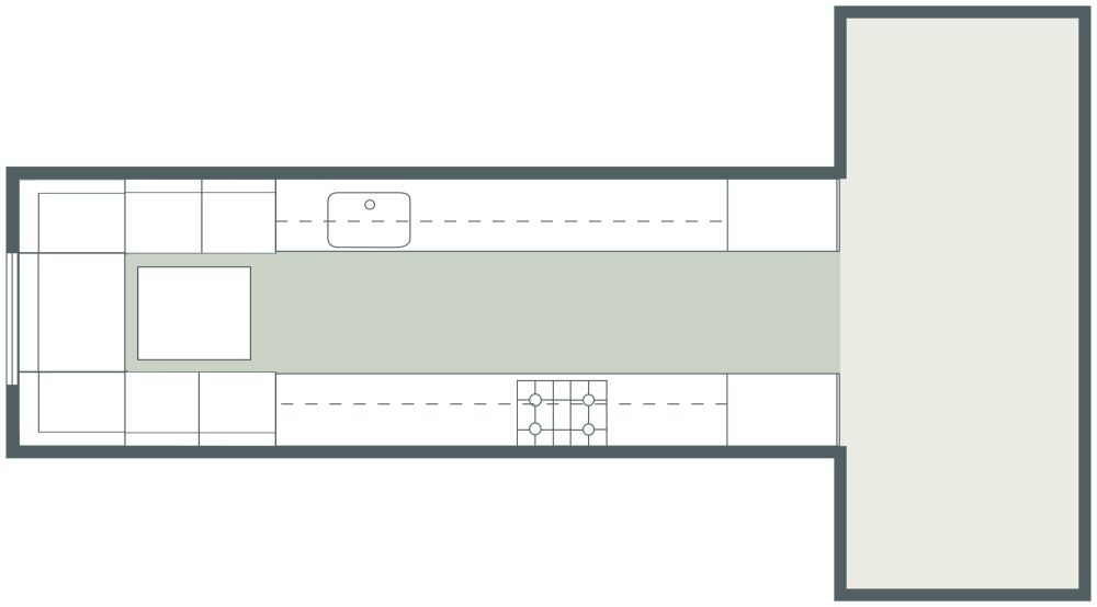
Wenn Sie nur einen T-förmigen Flur haben, in den Sie eine Küche einbauen möchten, dann ist diese schmale Galeerenküche mit Frühstücksecke vielleicht das Richtige für Sie. Wie die meisten Galeerenküchen verfügt sie über Arbeitsflächen auf beiden Seiten, so dass Sie genügend Platz haben, um in der Küche ein Kunstwerk zu schaffen. Es gibt Ober- und Unterschränke auf beiden Seiten der Küche, die Ihnen viel Stauraum bieten. Auf der einen Seite befindet sich ein Herd, auf der anderen eine Spüle und ein Kühlschrank. In einer Ecke befinden sich sehr bequeme Sitzgelegenheiten in U-Form mit einem Couchtisch davor. Hier können Sie Ihr Frühstück oder einen Snack zu sich nehmen. Man kann es sich aber auch einfach nur gemütlich machen und ein Buch lesen, während man aus dem Fenster schaut. Insgesamt ist dies ein gemütlicher und fröhlicher Raum.


Hergestellt von
Kitchen Designs

Ähnliche Grundrisse


Mehr von diesem Anbieter