Grundriss für eine 2-Zimmer-Wohnung mit separatem Hauswirtschaftsraum

508 sq ft
47 m²
1 Etage
1 Schlafzimmer
1 Badezimmer

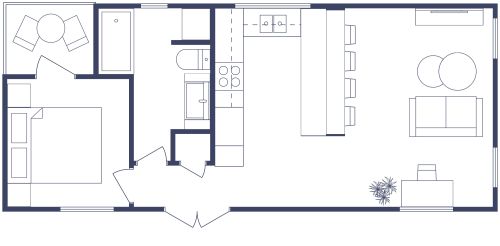
Ihr Traum von einem eigenen Hauswirtschaftsraum kann nun Wirklichkeit werden mit diesem durchdachten Grundriss für eine Zwei-Zimmer-Wohnung mit separatem Hauswirtschaftsraum. Betreten Sie das Foyer und entdecken Sie praktische Aufbewahrungsmöglichkeiten, wie einen Kleiderschrank, Haken für Ihre Garderobe und ein Bücherregal für persönliche Gegenstände. Rechterhand präsentiert sich eine voll ausgestattete Waschküche, die mit einer platzsparenden, gestapelten Waschmaschine, einem Trockner und reichlich Arbeitsfläche aufwartet. Linkerhand erwartet Sie ein geräumiges Badezimmer mit Waschbecken, Toilette und Dusche. Der gemütliche Wohnbereich bietet mit einem Esstisch für vier Personen, einer komfortablen Couch und einem Entertainment-Center Raum zum Entspannen und Beisammensein. Glasschiebetüren führen hinaus auf einen entspannenden Balkon oder eine Terrasse. In der L-förmigen Küche finden Sie einen großen Herd, eine Doppelspüle und einen großzügigen, integrierten Kühlschrank. Das weitläufige Schlafzimmer, das genug Platz für ein Kingsize- oder Queensize-Bett bietet, begeistert mit seinen eingebauten Schubladen und Schränken als echte Highlights.


Hergestellt von
Home Designs

Ähnliche Grundrisse


Mehr von diesem Anbieter