Grundriss für ein 2-stöckiges Haus mit 5 Schlafzimmern und 3 Bädern

3543 sq ft
329 m²
2 Etagen
5 Schlafzimmer
3 Badezimmer
1 Toilette

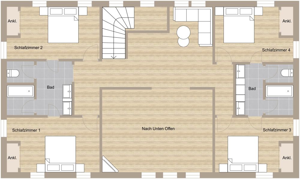
Dieser Grundriss für ein 2-stöckiges Haus mit 5 Schlafzimmern und 3 Bädern verfügt über eine begehrte Eigentümer-Suite im Erdgeschoss und vier Schlafzimmern im Obergeschoss. Über eine schöne überdachte Veranda gelangt man in einen halb offenen Wohn-, Küchen- und Essbereich mit einem praktischen Badezimmer. Die Küche verfügt über eine Kücheninsel/Frühstücksbar, eine Doppelspüle, einen Herd, einen Kühlschrank, eine große Speisekammer und genügend Stauraum in den oberen Schränken. Ein praktischer Eingang über die Garage, der direkt in den Hauswirtschaftsraum und die Küche führt, macht das Einräumen von Lebensmitteln schnell und einfach. Das geräumige Hauptschlafzimmer im Erdgeschoss verfügt über zwei Einbauschränke, einem eigenen Bad mit Toilettenraum, zwei Waschbecken, einer begehbaren Dusche und einer Badewanne. Im Obergeschoss können Sie das Loft als Bereich für Hausaufgaben, ein Jugendzimmer, Spielzimmer oder als Leseecke einrichten. Jedes der vier nahe gelegenen Schlafzimmer verfügt über einen Einbauschrank und einen gemeinsamen Zugang zu einem Badezimmer mit zwei Waschbecken, einem eigenen Toilettenraum und einer Badewanne oder Dusche.


Hergestellt von
Home Designs

Ähnliche Grundrisse


Mehr von diesem Anbieter