Grundriss für eine 3-Zimmer-Garagenwohnung mit Balkon

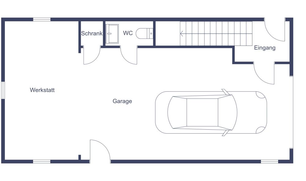
Betrachten Sie diesen Grundriss für eine 3-Zimmer-Garagenwohnung mit Balkon. Die multifunktionale Garage ist nicht nur für ein Auto konzipiert, sondern auch mit Regalen und genügend Raum für eine Werkstatt, ein Büro, ein nützliches Badezimmer und einen Stauraum ausgestattet. Über das Eingangsfoyer und eine Treppe gelangen Sie in die Wohnung mit drei Zimmern. Hier empfängt Sie ein lichterfüllter Wohn- und Essbereich, von dem aus Sie Zugang zu einem großzügigen Balkon oder einer Terrasse haben. Direkt angrenzend finden Sie eine effizient gestaltete Galeerenküche mit Kühlschrank, Herd, Spüle, weitläufigen Arbeitsplatten und praktischen Hängeschränken. Die beiden nahezu gleich großen Schlafzimmer sind mit Einbauschränken und mehreren Fenstern ausgestattet, die einen herrlichen Ausblick bieten. Diese Zimmer teilen sich ein komfortables Badezimmer mit Waschbecken, WC und einer kombinierten Badewanne/Dusche.

Hergestellt von
Apartment Designs
778 sq ft
72 m2
2 Etagen
2 Schlafzimmer
1 Badezimmer
1 Toilette

Dieser Grundriss kann angepasst werden.

Dieses Projekt bearbeiten

Möchten Sie diesen Grundriss bearbeiten oder einen eigenen erstellen?

Download App

Ähnliche Grundrisse


Mehr von diesem Anbieter