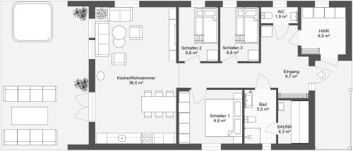
Grundriss für eine Wohnung mit 3 Schlafzimmern und U-förmige Küche

Dieser Grundriss für eine Wohnung mit 3 Schlafzimmern und U-förmige Küche ist perfekt für diejenigen, die es bevorzugen, dass sich Schlafzimmer und Hauswirtschaftsraum auf einer Seite des Hauses befinden. Das große Eingangsfoyer verfügt über eine Garderobe und ein Badezimmer mit Waschgelegenheit. Vom Foyer aus führen Flügeltüren in ein formelles Wohnzimmer mit einem schönen Panoramafenster, das den Blick auf den Hinterhof freigibt. Auf der rechten Seite befinden sich ein offenes Zimmer, ein Essbereich und eine Küche, die sich hervorragend für eine Familie eignen. Die U-förmige Küche verfügt über einen großen Kühlschrank, einen Herd, eine Spüle, erweiterte Arbeitsflächen und Stauraum in den oberen Schränken. In der Nähe befindet sich ein Esstisch für acht Personen, an dem eine größere Familie oder Gäste bequem Platz finden. Eine Terrasse vor dem Familienzimmer ist mit einem Tisch und Loungesesseln für Mahlzeiten im Freien oder zur Unterhaltung ausgestattet. Auf der linken Seite des Grundrisses befindet sich ein großes Hauptschlafzimmer mit zwei großen Stauschränken. Zwei sekundäre Schlafzimmer haben jeweils Einbauschränke. Beachten Sie auch den angrenzenden anpassbaren Abstellraum. Ein nahe gelegenes Badezimmer ist praktisch für alle Schlafzimmer.

Hergestellt von
Home Designs
1579 sq ft
147 m2
1 Etage
3 Schlafzimmer
1 Badezimmer
1 Toilette

Dieser Grundriss kann angepasst werden.

Dieses Projekt bearbeiten

Möchten Sie diesen Grundriss bearbeiten oder einen eigenen erstellen?

Download App

Ähnliche Grundrisse


Mehr von diesem Anbieter