Warmer und stilvoller Grundriss mit Außenbereichen

2226 sq ft
207 m²
1 Etage
4 Schlafzimmer
2 Badezimmer

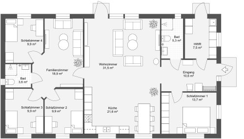
Dieser warmer und stilvoller Grundriss mit Außenbereichen bietet Ihrer Familie reichlich Raum zur Entfaltung. Er zeichnet sich durch getrennte Schlafbereiche, unterschiedliche Wohn- und Familienzimmer sowie attraktive Terrassen aus, die zum gemeinsamen Verweilen einladen. Das Herzstück bildet das geräumige, sonnige Wohnzimmer mit einem gemütlichen Kamin und großen Glasschiebetüren, die zu einer einladenden Terrasse führen – ideal für gesellige Stunden im Freien. In unmittelbarer Nähe befindet sich die separierte, L-förmige Küche, die einen abgeschirmten Raum für leidenschaftliche Köche bietet, um ungestört zu wirken. Die Haupt-Schlafzimmersuite beeindruckt mit eleganten Doppelflügeltüren, einem umfangreichen begehbaren Kleiderschrank und einem geräumigen, privaten Bad. Weiter entlang des Flurs liegen drei großzügige Schlafzimmer, alle mit großen Fenstern und praktischem Einbaustauraum, die sich ein clever konzipiertes Badezimmer mit separiertem WC-Bereich teilen. Zusätzlich bieten zwei flexible Räume, die aktuell als Büro und Fitnessraum genutzt werden, zahlreiche Möglichkeiten zur individuellen Gestaltung – sei es als Spielzimmer, Kinderzimmer oder Jugendzimmer.


Hergestellt von
Home Designs

Ähnliche Grundrisse


Mehr von diesem Anbieter